exutoire renovates narrow tube house in hanoi
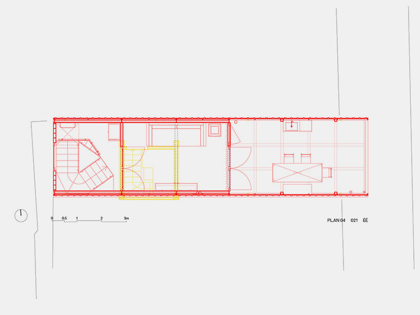
Exutoire completes 22YB1, a full renovation of an early-1990s tube house in central Hanoi that now accommodates both the architects’ studio and a multigenerational home. The project reworks a three-and-a-half-story structure measuring just three meters wide by 12 meters deep, a typical post-Đổi Mới housing typology, to address long-standing issues of darkness, poor ventilation, and thermal discomfort.
Emerging in large numbers during Vietnam’s construction boom of the 1990s, tube houses are defined by their narrow plots and deep plans, often resulting in dim and stuffy interiors. Exutoire reorganizes the core of the building and relocates the staircase, previously positioned at the center and acting as a spatial barrier, to the back of the plot and removes transverse partitions to open up each level, allowing light and air to travel freely through the depth of the house. Larger, continuous rooms replace compartmentalized floors, and the new open stairwell contributes to improved cross and stack ventilation, a passive strategy particularly relevant in Hanoi’s humid subtropical climate.

all images by Maxime Delvaux
rethinking the tube house section
In keeping with the long tradition of shophouses in Vietnam, the ground floor functions as Exutoire’s architecture studio, while the upper levels host a form of non-nuclear living designed for family and friends. The arrangement reflects a hybrid domestic-work model embedded in the urban history of the city.
At the front, the architects recondition the facade while preserving traces of its previous expression, maintaining a layered reading of time. At the rear, a wall of glass bricks introduces diffused natural light deep into the plan while maintaining privacy in the dense urban fabric. New window openings and the repositioned stairwell enhance airflow, while the facade upgrade improves overall energy performance.

Exutoire renovates an early-1990s tube house in central Hanoi
structural reinforcement and rooftop extension
The team selectively reinforces the original concrete column-and-beam structure with brick infill to make the structure more durable without erasing the existing framework. Above, a galvanized steel structure clad in insulated corrugated sheet metal forms a roof extension, signaling a contemporary addition while remaining materially straightforward.
Granito flooring, exposed concrete surfaces, and white-painted walls and ceilings, treated with varying levels of gloss, create a neutral backdrop. Within this restrained field, color operates as punctuation, with bright yellow ceramic tiles, royal blue oil-stained wood cabinetry, and lacquer-red cylindrical handrails animating the interior.
Bas-reliefs on the front facade mark the address and year of completion of the building, referencing a century-old local practice that acknowledges the rebirth of a house through architectural inscription.

bas-reliefs on the front facade mark the address and year of completion of the building

the renovated building now accommodates the architects’ studio and a multigenerational home

the project reworks a three-and-a-half-story structure

a typical post-Đổi Mới housing typology

the project addresses long-standing issues of darkness, poor ventilation, and thermal discomfort

Exutoire reorganizes the core of the building and relocates the staircase to the back of the plot

removing transverse partitions to open up each level

allowing light and air to travel freely through the depth of the house

the new open stairwell contributes to improved cross and stack ventilation

a passive strategy particularly relevant in Hanoi’s humid subtropical climate

the ground floor functions as Exutoire’s architecture studio

a galvanized steel structure clad in insulated corrugated sheet metal forms a roof extension
1/17

larger, continuous rooms replace compartmentalized floors

tube houses are defined by their narrow plots and deep plans, often resulting in dim and stuffy interiors

new window openings enhance airflow

the team selectively reinforces the original concrete column-and-beam structure with brick infill

a hybrid domestic-work model embedded in the urban history of the city

the facade upgrade improves overall energy performance











project info:
name: 22YB1
architect: Exutoire | @exutoire_
location: Hanoi, Vietnam
team: Bùi Quý Sơn, Paul-Antoine Lucas
photographer: Maxime Delvaux | @maxdelv