Ellen DeGeneres‘ plans to build stables at her £22million Cotswolds home could be in jeopardy as the immediate area is surrounded by Roman relics and structures – with fears that the potential site could be on top of historic remains.

The local council’s archaeological department have voiced their concern after plans were submitted by Ellen and wife Portia De Rossi to demolish an agricultural building and construct a suitable enclosure to indulge Portia’s passion for horses.

The pair bought the property in 2024 for £15million, spending a further £7.5million on renovations, before abandoning the 43-acre estate after it was plagued by flooding.

They put the property on the market for £22million, and a deal was reportedly close, but this planning application confirms that the pair are now committed to staying, with it being stated in docs that ‘they wish to make this their long term home’.

Now Oxfordshire County Archaeological Services have commented on the application filed with West Oxfordshire District Council revealing that numerous Roman structures are within a few hundred yards.

North of the home is a Roman bridge while a protected Roman villa and bath house is also near the proposed site. 

The local council's archaeological department have voiced their concern after plans were submitted by Ellen and wife Portia De Rossi to demolish an agricultural building and construct a suitable enclosure to indulge Portia's passion for horses

The local council’s archaeological department have voiced their concern after plans were submitted by Ellen and wife Portia De Rossi to demolish an agricultural building and construct a suitable enclosure to indulge Portia’s passion for horses 

Ellen and her partner Portia De Rossi bought the property in the Cotswolds for £15million in 2024 and spent a reported £7.5million on external and internal renovations

Ellen and her partner Portia De Rossi bought the property in the Cotswolds for £15million in 2024 and spent a reported £7.5million on external and internal renovations

Archaeological Services have asked for conditions to be attached, if approved, that a ‘professional archaeological organisation’ should be in attendance ‘during the period of construction/during any groundworks taking place on the site’ and ‘no development shall commence without the appointed archaeologist being present’.

The flood risk officer has also asked for ‘a full and detailed surface drainage scheme’.

Any surface drainage system must be able to withstand one in 100-year and one in 30-year storms ‘plus 40 per cent for climate change’.

This condition is especially pertinent considering flooding was the main factor for the pair leaving the farm rapidly and moving to a property on higher land.

In November 2024 came Storm Bert, with the worst rain and winds in years, which flooded their village’s lowlands with some of the roads deluged in five feet of water.

‘The flood waters are rising by the hour,’ one local resident who lives near the couple said at the time. ‘This is the worst I have seen in years.’

Judging by the estate’s close proximity to a major tributary of the River Thames, there’s little doubt it’s at risk of flooding in the future during bad weather.

Situated in the uber trendy Cotswolds area, the picturesque setting was to be the perfect antidote to American life in the Donald Trump era.

Join the discussion

Do YOU think Ellen and Portia will finally settle in the Cotswolds for good?

Planning documents published in March revealed the couple have ambitions to make the Cotswolds estate their 'long term home' if their bid for new stables is successful

Planning documents published in March revealed the couple have ambitions to make the Cotswolds estate their ‘long term home’ if their bid for new stables is successful

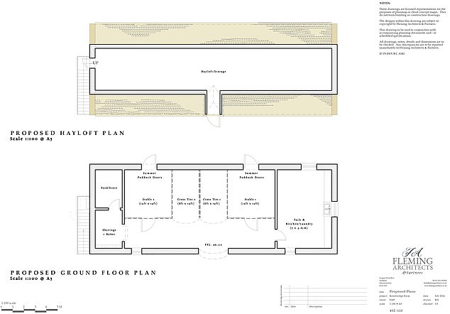
Drawings show it is of vernacular design, to be built in stone with a pitched tile roof and has been designed to appear as a natural complement to the group of buildings

Drawings show it is of vernacular design, to be built in stone with a pitched tile roof and has been designed to appear as a natural complement to the group of buildings

The full planning application, that seeks to knock down an agricultural building and build stables in its place, will be considered by West Oxfordshire District Council

The full planning application, that seeks to knock down an agricultural building and build stables in its place, will be considered by West Oxfordshire District Council

The reportedly ‘very disillusioned’ pair decided to ‘get the hell out’ after the November election, although their move across the pond had been planned months before that.

They bought the converted farmhouse, which is a mix of renovated outbuildings and barns, connected together by various previous owners, sourcing materials from France and Belgium.

It boasts six bedrooms, a gym, a 17-meter indoor pool in a previously dilapidated cowshed, and a grassy helipad, used by the last owner who was a pilot.

Yet their dream turned into a nightmare and they moved to an ultra-modern farm a few miles up the road.

It now appears they’ve had a change of heart.

In a design and access statement to support their stables application to West Oxfordshire District Council, their representatives said: ‘The applicants carried out a successful renovation of the house last year and wish to make this their long term home.

‘One of their passions is horses and although the building group is large, there is no provision for horses or for their training and bringing up.

‘This application seeks to address this in as sensitive a way as possible.’

Ellen and her partner Portia moved out after less than a month to find somewhere more suitable to indulge in Portia's passion for horses

Ellen and her partner Portia moved out after less than a month to find somewhere more suitable to indulge in Portia’s passion for horses

North of the home is a Roman bridge while a protected Roman villa and bath house is also near the proposed site (Pictured: Flooding at Ellen and Portia's property)

North of the home is a Roman bridge while a protected Roman villa and bath house is also near the proposed site (Pictured: Flooding at Ellen and Portia’s property)

Ellen has previously spoken about the need for a home with a horse facility and said in a previous statement: ‘When we decided to live here full time, we knew that Portia couldn’t live without her horses.

‘We needed a home that had a horse facility and pastures for them.’

The statement included a plea for planners at the council to approve the application as ‘quickly as possible.’

It concluded: ‘The stable building has been sensitively designed, sited and orientated, to reduce visual massing and tie the new stable building into the existing building group.

‘Indeed when comparing the existing agricultural shed – which is to be demolished – against the proposed stable building, it is likely the traditionally designed stone building would sit better and belong more coherently to the adjacent building group.

‘Overall we feel this scheme would give great enjoyment and amenity to the site without any significant harm, especially alongside the removal of the agricultural shed, and accordingly we hope this meets with officer approval.’