Driving through the Horfield area of Bristol, the immediate horizon is dominated by the bulk of Southmead Hospital’s BDP-designed Brunel building, a £430 million, 800-bed facility which opened in 2014. Around it are streets and closes of mostly suburban-style, two-storey housing in semi-detached pairs or short terraces, dating from the 1930s to 1950s. Their neat, low-rise, pitched-roof silhouettes and brick or rendered orthogonal forms contrast with the hospital’s curved, smoothly systematised façades of panelised metal, stone and glass looming in the distance.
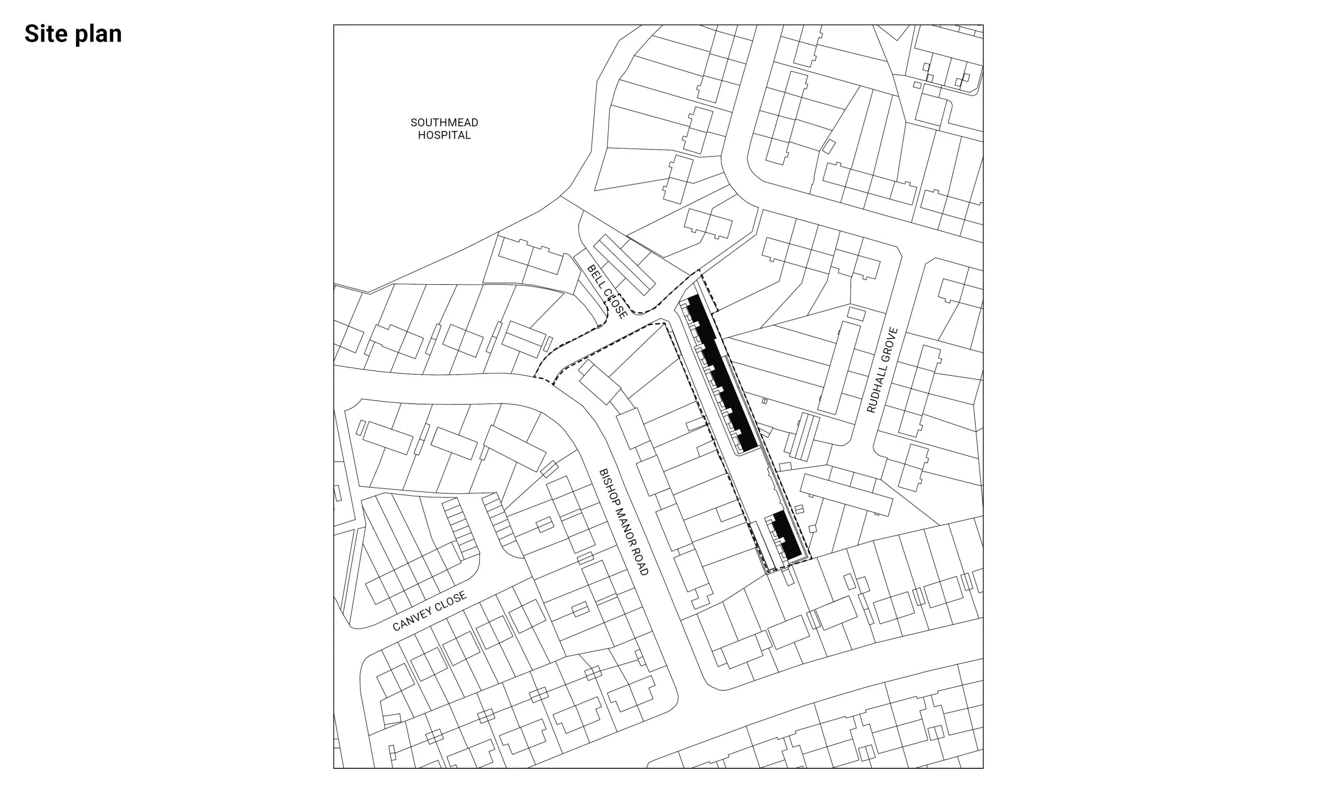
On turning into Bell Close, a cul-de-sac between two semis, you are faced by a row of small houses fusing something of the aesthetics of both. It’s BDP’s latest – if much smaller – project in the area: nine one-bedroom council-built, social-rent homes, running along one side of the cul-de-sac – each a two-storey single-pitched volume wrapped in metal panels. This is not simply cladding, but structural insulated panels (SIPs) which form the façades and structure of the houses, fabricated off-site and specified in a punchy red colour, like a row of serrated vermilion teeth (although the colour is more gentle in the flesh than the photographs).

‘One of the things I think is great about this scheme and others we’re building around the city is that there’s always a bit of a wow-factor about them,’ says Councillor Barry Parsons. He currently holds the housing portfolio at Bristol City Council, which is building around 500 homes across 30 sites. Around 80 per cent of those they are directly delivering are for social rent, dealing with what he describes as ‘an acute need for social rent homes’. ‘We want to deliver homes that make a bit of a statement about the status and the importance that we give to social housing,’ he explains.
A line of garages between the rear gardens of surrounding council houses previously occupied the Bell Close site. These had become disused and were the target for anti-social behaviour. ‘People used to come home, drive round to their garage, put their car away, and go back to their house. But no one does that any more; they park on the street. Cars got too big too for the old style of garages,’ says Parsons.
It’s typical of many similar sites across Bristol on council-owned land, which, despite the desperate need for new homes in the city, remained unused because it was not considered viable to redevelop them, on account of their small size. ‘There just isn’t the on-site space required for labour and materials needed for traditional construction,’ says Nick Ellis, associate architect at BDP, who led the Gap House project. ‘However, using modern methods of construction (MMC) has not only cut costs but also meant it’s feasible to develop these small sites. MMC has been a real catalyst for this and other developments.’

The use of MMC was supercharged in Bristol by the Bristol Housing Festival, which was launched in 2018. Originally a five-year programme supported by Bristol City Council, Bristol and Bath Regional Capital, the West of England Combined Authority and the Shaftesbury Partnership – and since developed into a strategic consultancy – its aim has been to promote innovation in construction and housing delivery, in particular the use of smart technology and off-site manufacturing – something the council has clearly embraced.
‘We’re very interested in MMC as a part of our housing solution,’ says Parsons. ‘There’s a number of things attractive about it. On small sites like this, panelised systems can be built off-site and then assembled. But, additionally, given our climate and energy efficiency goals, structural insulated panels and other similar systems deliver really good thermal efficiency and consistent build quality.’
At Bell Close, Ellis says, BDP originally considered using CLT for the structure but weight and cost factors persuaded them to opt instead for the SIPs, which are manufactured in Devon just an hour and 15 minutes’ drive away. ‘It was weathertight in three to five days. And MMC enabled early engagement with building control, so they got to understand the system,’ he adds. At end of life, the panels can be disassembled and recycled.

They also ease maintenance. ‘One thing that we’ve learned from the various different schemes and systems we’ve used is that it’s really important for our M&E and maintenance teams to be able to understand the product, so that they can look after it in the long term,’ says Parsons. ‘We want these homes to be here for generations.’
The Bell Close project was directly delivered by the council’s in-house team, which, Parsons says, is the case for most of the smaller sites they are developing. Apart from garages, these sites include former churches and pubs that have fallen into disuse.
‘For direct delivery, we’ve a team working within the council that builds just social-rent homes, funded by our housing revenue account. Our other main route to delivery on larger sites of 70 homes is via Goram Homes, our housing development company. They develop schemes on larger plots of council-owned land as joint ventures with other developers.’
A recent example of the latter is Baltic Wharf, which has just broken ground, a council-owned harbour site in Bristol city centre. It is being developed jointly with Hill Group and 166 homes are being built, 66 of which will be designated ‘affordable’, with the majority for social rent.

Bell Close, while tucked away, sits off a public right of way – a pedestrian path connecting through to another street – so, approaching it, the site feels nicely permeable. Early on in the project, the scheme was mooted as possible key worker housing serving the nearby hospital, but in the event the NHS decided it wasn’t needed. So all nine units are for social rent, occupied by single people and couples from the city’s housing list. ‘The most pressing need we have is for one-bedroom homes,’ says Parsons. On the exterior, build quality appears good, with crisp detailing and junctions. The colour gives the homes a strong collective identity which boldly marks them out from their mostly cream or tan-coloured neighbours. However, there’s a jarring note in that the line of covered bin stores at the front are fractionally a different colour – a predictable pitfall in achieving an all-of-a-piece wraparound aesthetic for a scheme like this when specifying from differing suppliers – and one which bodes ill for future maintenance or replacing of elements.
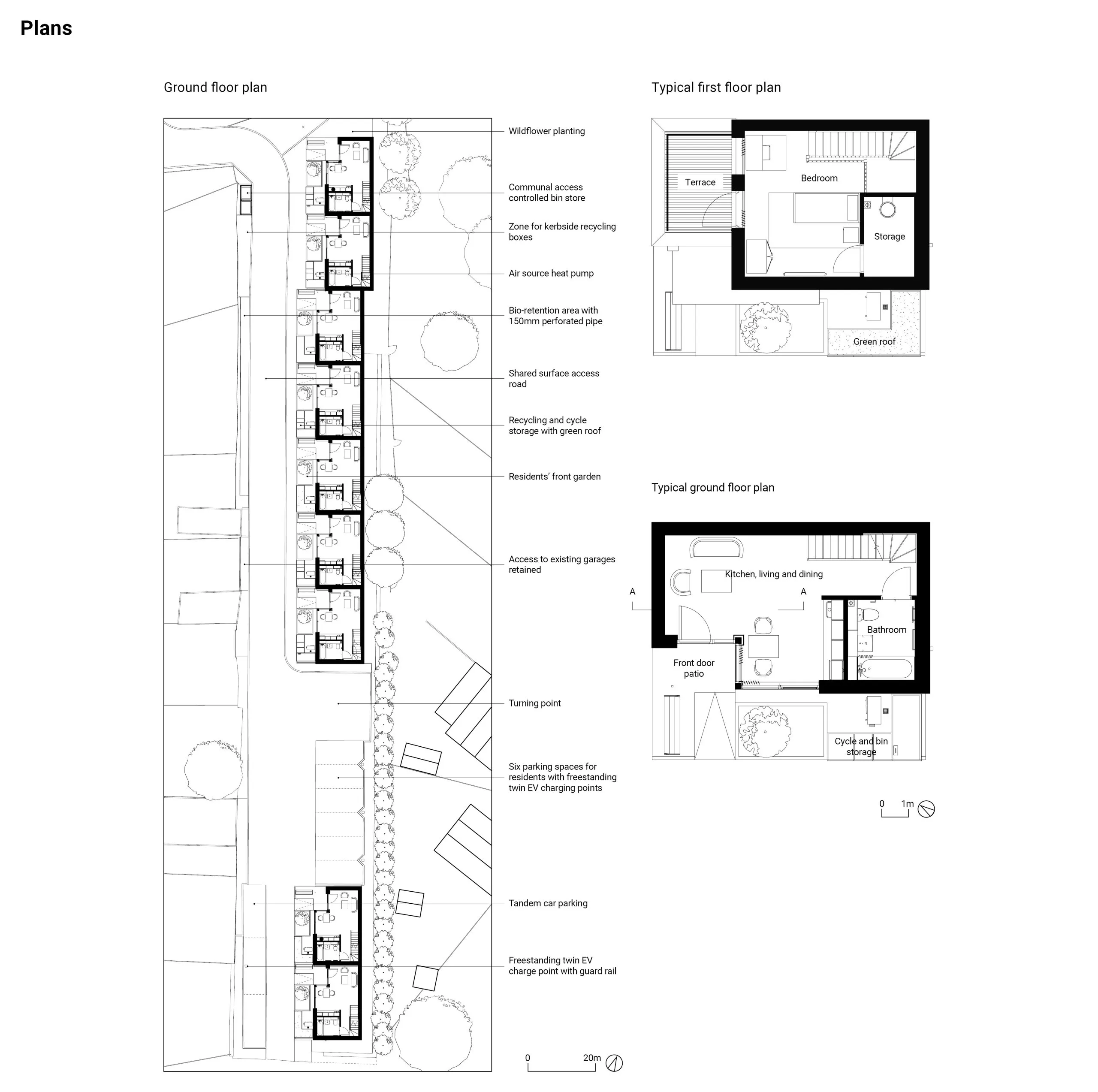
Each house is three parking bays or garage plots wide. They are lined up close against the eastern edge of the plot, allowing access for passing vehicles. The line of houses is also broken to provide parking bays and a wider turning circle. It avoids feeling too dominated by the car, as the whole site is finished with red pavers, reading as a shared surface and making it feel like a pedestrian-friendly mews space.

Due to the space constraints, there are no private gardens. BDP has compensated for this by providing a sheltered upper terrace space, which sits above each house entrance and is accessed off the bedroom. These are relatively shielded from overlooking.
More broadly, however, concerns around overlooking of neighbouring properties have led to these houses having strangely blank upper façades. The only glazed openings are to the front at ground floor level and to the side terrace at first floor level, resulting in a rather enclosed aesthetic that one imagines was also driven in part by the logic of the construction system: minimal openings, junctions and cost, maximal thermal envelope efficiency. This concern is flipped at ground floor level, where overlooking and interaction are encouraged. Here, the front door and a slot of glazing look out onto a deep threshold flanked by a thick L-shaped ‘garden wall’ of bin storage, which also houses a bike store and air source heat pumps (the homes are all gas-free with PVs on the roof offsetting the running costs). It’s a threshold intended to be occupied and enjoyed, with a covered porch area, built-in bench and flower bed.
‘We wanted to foster a sustainable community, even on such a small site: so doorstep culture seemed important, encouraging neighbourliness and helping combat loneliness,’ says Ellis. Parsons adds: ‘When we first talked to BDP, one of the things that they talked about was the idea of front porch culture. That’s something we think is really attractive about this scheme. There are private balconies to the side: meaning you can be outdoors and have some privacy there. But you also have the opportunity to be out amongst your neighbours at the front.’

Inside, these are cottages in all but name, with a one-up, one-down arrangement. There is no hallway and you enter directly into a roughly L-shaped living space – reliant on the judicious arrangement of a sofa to define it. Off to the right a run of fitted cabinets signals the kitchen, which has room for a table, while behind this is a bathroom and stairwell.
Qualitatively, the space is surprisingly bright, for all that the light comes from one direction. On the first floor, the stairs land directly in the bedroom space. French doors lead onto the terrace and there is room for a desk. The relatively small space feels airy, its ceiling opened up to the eaves of the single-pitch roof – although all lined somewhat deadeningly in plasterboard. ‘We took advantage of its being only two storeys and not requiring fire doors, so we were able to borrow light for the stairwell,’ says Ellis. ‘The aim is to increase wellbeing through getting the basics of light and space right.’ It feels like something of a missed trick, however, not to have a skylight over the stairwell to light and enliven the spaces more. Ellis says this lost out in a battle for space with the PVs on the roof – and, one suspects, due to cost, too.
These are well put-together homes, but there is the sense that concerns with minimising junctions and maintenance have outweighed making the interiors more inspiring – although, of course, there’s a limited palette to play with.

Inevitably, perhaps, the push to minimise operational costs for residents and help tackle fuel poverty also took priority over embodied carbon considerations in the choice of structural system. Nevertheless, Ellis describes the scheme as ‘a scalable pilot for further development’ and says that they are looking at refining it on future iterations, with OSB replacing cementitious board, steel framing removed all together and PIR replaced with a less carbon-intensive alternative.
While whole streets and larger developments of these houses might prove to be difficult on the eye, it works at this scale and is an instructive model of how a close relationship with the supply chain can help minimise construction and maintenance costs. It will be interesting to see how its fabric ages and it beds down in its area.
The resident we visited seemed very content, while reporting issues ranging from kids ringing the front doorbell and running away to the built-in bench out front being knocked over by a reversing car. Still, perhaps these are not the worst problems to have and typical of teething problems for a new scheme fitting into its neighbourhood and community. Certainly, as an example of efficient, fast-track provision of decent homes, fitted into an underutilised site, it works.

Architect’s view
The Gap House project began as a response to a longstanding challenge for cities: how to deliver genuinely affordable, sustainable homes on land that is constrained, costly, or traditionally seen as unusable. Disused garage sites, common across the UK, offered a unique opportunity to rethink these forgotten pockets of land as a resource for community-focused housing. Working with Bristol City Council, we developed a modular typology that fits precisely on the footprint of three former garages, enabling delivery on tight, urban plots with minimal intervention.
Environmental performance was embedded in the concept from the outset. The homes use a highly insulated structural insulated panel (SIP) system by Etopia, fabricated off-site to improve quality and reduce waste. This fabric-first approach achieves excellent thermal performance, with wall U-values of 0.16 W/m²K and roof U-values of 0.11 W/m²K, significantly reducing heat loss and operational energy demand. The dwellings achieve primary energy use of approximately 45 kWh/m² a year, comfortably within the Future Homes Standard trajectory.
Air source heat pumps, solar PV arrays (1.3 kWp per unit), low-energy lighting and minimal heating requirements further reduce carbon emissions and support long-term affordability for residents. Embodied carbon is reduced through lean construction, light-touch foundations and the use of factory-made components that minimise waste and transportation impacts.
Equally important was the project’s social and planning context. Community consultation shaped the design, ensuring the homes integrate seamlessly into the existing street pattern. Large windows, careful massing and shared landscape spaces support natural light, safety and neighbourliness. They create a ‘front porch culture’ for a new community in Bristol. The Gap House scheme demonstrates how intelligent small-site strategies can unlock meaningful housing numbers and create people-centered places while helping cities transition towards net zero.
Nick Fairham, chief executive, BDP

Specialist’s view
The Gap House project proves that underused garage sites and awkward pockets of municipal land bring real opportunities. Those rows of empty lock-ups and forgotten backlands you pass through in towns and cities can become high-quality homes, built to last. What BDP, Beard and Etopia have demonstrated is that even the most overlooked sites can be transformed into well-designed, durable housing.
Our system is what made it possible. Factory-manufactured structural insulated panels with high-strength OSB or cement-board facings and a compressed polyurethane core create a lightweight, load-bearing shell that is highly insulated and exceptionally airtight. Because the panels are precision-made off-site and craned into position, we eliminated many of the challenges of backland sites: tight access, disruption to neighbours and weather-related delays. The result is faster delivery, cleaner sites and far greater certainty.
The homes themselves are energy-efficient and built for long-term performance. Low U-values deliver excellent thermal efficiency, reducing both heating bills for residents and carbon use over the building’s lifetime. Structurally robust yet lightweight, the system performs well on modest foundations, which is critical when working on plots with variable or unknown ground conditions.
Gap House shows what’s possible when good design, MMC and imagination come together. These are practical, sustainable homes delivered on sites that were once written off.
Bill Hampton, managing director, Etopia

Client’s view
Creating safe and healthy neighbourhoods, with affordable, high-quality homes, is one of the council’s key priorities and working with partners is key to helping us achieve these goals. These nine new homes will be a real asset to the council’s housing stock and allow us to make a real difference to the lives of nine households in need of an affordable home.
Using innovation and MMC, the Gap House concept has allowed us to build vital homes on a difficult site with limited access. I am also delighted that the new homes are low-energy and sustainable, which will result in cheaper energy bills for future tenants.
Councillor Barry Parsons, chair, Homes and Housing Delivery Committee, Bristol City Council

Working detail
The Gap House scheme’s core construction system is a structural insulated panel envelope. SIPs form the external walls and roof, providing a continuous insulation layer that minimises thermal bridging and achieves low wall and roof U-values.
The lightweight nature of the construction enables shallow foundations, reducing embodied carbon and allowing the homes to be positioned precisely within the tight footprints of former garages. SIPs arrive to site pre-cut and factory-finished, improving accuracy and reducing waste. Once craned into place, the panels form an immediate weathertight shell, enabling rapid fit-out on sites with restricted access.
Material choices support long-term environmental performance and durability. High-performance glazing (0.86 W/m²K weighted average) maximises daylight while minimising heat loss. Timber cladding and locally resonant materials echo the surrounding residential context, ensuring the homes sit comfortably within the neighbourhood fabric. Inside, the open-plan ground floor makes efficient use of the compact footprint and reinforces the simplicity and legibility of the construction method.
The services strategy is equally straightforward. Air source heat pumps provide efficient space heating and hot water, supplemented by solar PV arrays generating on-site renewable energy. Mechanical ventilation is minimised through a natural ventilation strategy that exploits cross-flow and stack effect, contributing to low operational energy use at around 45 kWh/m²/yr. Together, the detail, materials and construction method create a resilient, replicable model for low-impact homes on small, challenging sites.
Matthew Mayes, architect director, BDP
Project data
Location: Bell Close, Bristol
Start on site: April 2024
Completion: July 2025
Gross internal floor area: 48.8m² (per unit)
Form of contract: Two-stage Design and Build
Architect: BDP
Client: Bristol City Council
Structural engineer: Craddys
SIPs supplier/specialist consultant: Etopia
Quantity surveyor: RLB
Landscape consultant: BDP
Acoustic consultant: BDP
Project manager: RLB
Principal designer: RLB
Main contractor: Beard
CAD software used: Revit
Sustainability data
Percentage of floor area with daylight factor >2%: 20.8%
Percentage of floor area with daylight factor >5%: 5.6%
On-site energy generation: Not calculated
Annual mains water consumption: 0.12 m³/occupant
Airtightness at 50Pa: 1.5-1.9 m³/h.m²
Heating and hot water load: 8,000 kWh/m²/yr
Operational energy: 30.09 kWh/m²/yr
Total energy load: 78.86 kWh/m²/yr
Overall area-weighted U-value: 0.21 W/m²K
Predicted design life: 60 years
Embodied carbon: 515.2 kgCO2e/m² (predicted)
Energy Performance Certificate rating: B