The Winchester-based practice, known for designing rural private homes, including the stone Bay House in north Devon, has completed a new welcoming space to its existing brick office.
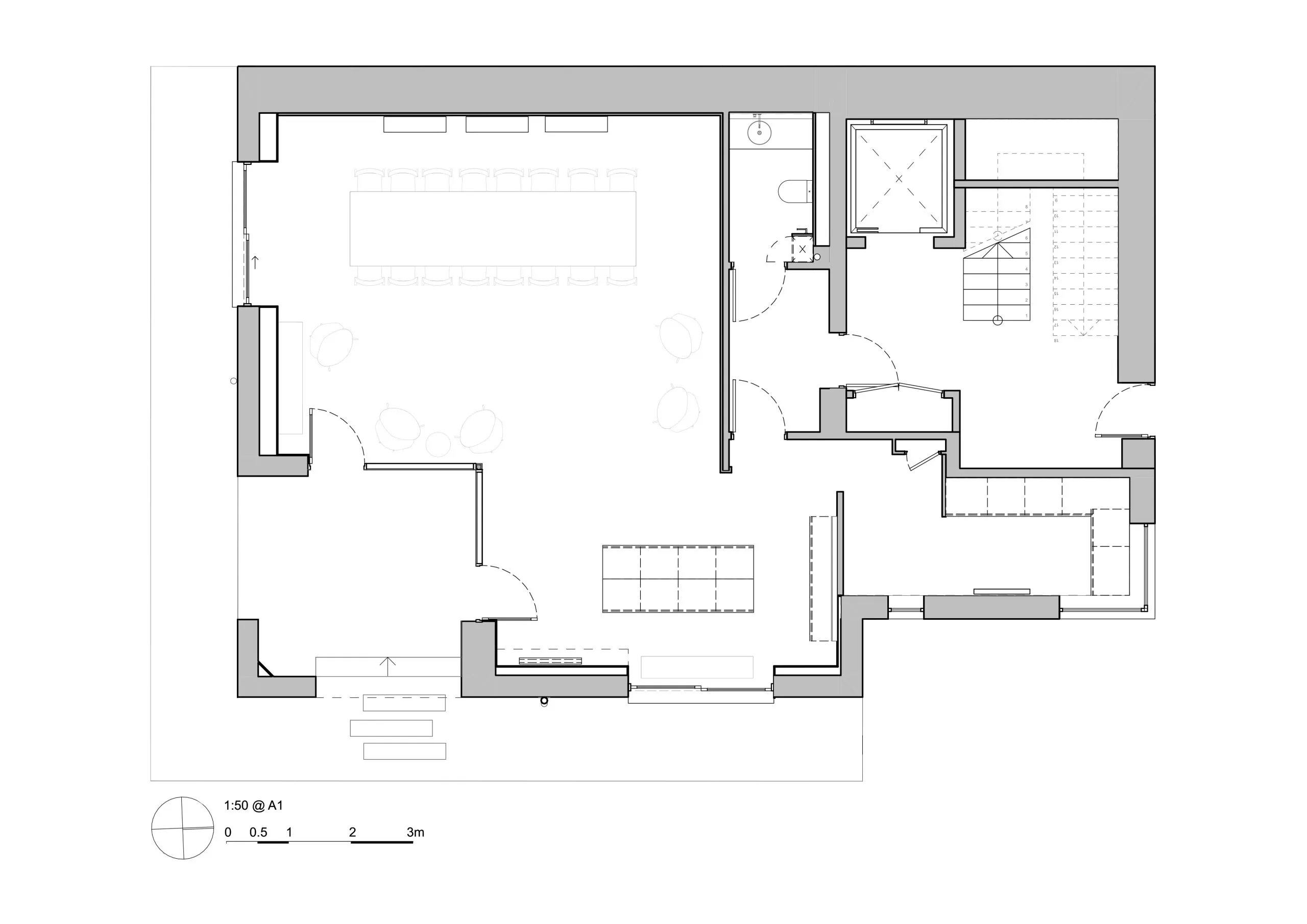
The studio can now be accessed from two entrances: either via an internal door allowing employees to use the space for meetings or via a second landscaped street entrance for clients and guests.
From the road, a short stepping stone path guides visitors to a raised, covered entrance with space for café-style tables and chairs. Designed to be home-like, the space is brick-paved and finished with composite cladding.

The new ground floor has an open plan layout with furniture and joinery design zones. Instead of a traditional reception desk, a large domestic kitchen island anchors the space.
Within the wider space is an oak dining table large enough to seat 20 people, as well as a timber panelled ‘project wall’ showcasing material samples.
Designed for flexibility, the room can double as a space for events and dinners, as well as meetings, workshops and independent working. It is finished in clay plaster and timber for warmth and tactility.

Architect’s view
We wanted to create a familiar space where the conversation about design feels natural and intuitive. When clients can sit at a table we would specify for their own home, or run a hand along a timber wall that could feature in their project, it demystifies the process. They experience the quality and aesthetic at first hand, which makes decisions less intimidating and the entire creative journey more collaborative and exciting.
Emily Johnson, senior architect, McLean Quinlan
 
Project data
Location Winchester
Construction start February 2025
Completion September 2025
Gross internal floor area 72m²
Architect McLean Quinlan
Client McLean Quinlan
Interior designer McLean Quinlan
Landscape designer Amy Perkins