‘It’s the final piece in the jigsaw puzzle,’ says John Puttick, director of the London-based practice John Puttick Associates (JPA). Preston Youth Zone, or rather ‘Vault, as it has been named by the local young people who use it – completes a 10-year reimagining of the city’s neo-Corbusian bus station and its public realm. When the centre formally opens this month, it will also mark a major accomplishment for the practice, which consisted only of Puttick (who was New York-based at the time) when it won the huge Grade II-listed bus station refurbishment project via an anonymous competition in 2015. The contest had been held in response to its popular listing the previous year. The Brutalist masterpiece, designed by BDP in 1969, was restored by JPA in 2018 and stitched back into the city through a careful public realm masterplan, which has been through many iterations over the past decade.
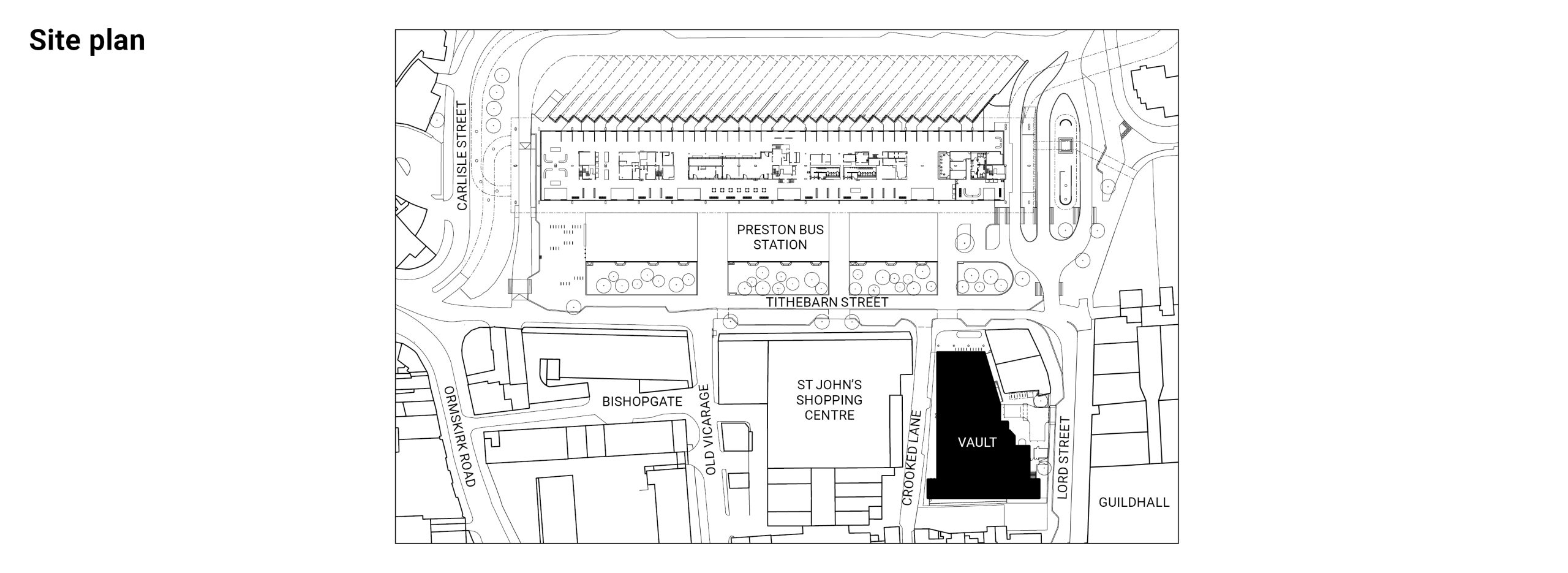
Vault is now locked firmly into place at the south-west end of the square, facing the bus station. ‘The position of the building was critical,’ says JPA associate Martin Aberson. ‘Accessible without a car, yet easily via public transport, it had to be part of the city centre.’

Preston, which only formally became a city during the Queen’s Golden Jubilee in 2002, has waited a long time for this moment. JPA’s involvement with OnSide, the charity that operates it, began when a youth centre was proposed within the overall scheme. It was a bumpy ride, however: sites shifted; the council’s political leadership changed hands and both funding and design were reworked. When a plot slightly removed from the bus station became available, it proved – in Puttick’s words – ‘ideal within our masterplan’. Puttick, who had been drawn to the original competition due to its ‘unusual combination of uses’, also felt the new site offered a better opportunity in the long term and ‘worked in tandem with Preston’s city-centre regeneration’, notwithstanding the firm’s original concept, which connected the youth centre to the concrete bus station. This arrangement was revised in 2016 to create a clearer distinction between the two buildings and to maximise the available public space around the station. Further reworked plans finally secured planning consent in 2023.

Preston Bus Station, November 1969 (credit: BDP)
The new three-storey centre completes the plaza-like square and, in plan, steps back to reveal a listed warehouse next door, whose adjacent former pub is destined for demolition. The massing, Aberson notes, ‘hides just how big the building is’. Tim Jacques, Preston Youth Zone’s new chief executive, laughs: ‘It’s a Tardis.’
Its folded façade is perhaps key to this illusion. Rib-textured cement panels – deployed for the first time on an articulated façade – catch the low Lancashire sun and throw shadows that recall the rhythm of the concrete bus station opposite. Bright yellow stair towers and columns punctuate the compact site, ‘announcing the building as a destination’, while a yellow mesh encloses the roof terrace, holding PVs and windcatchers as part of an energy-reduction strategy. It is not instantly legible as a city-centre youth club, however. ‘We didn’t want to be patronising or “too youth”,’ says Puttick. ‘We tried to make it quite noticeable but at the same time aspirational and serious.’ Older teens, staff report, appreciated that sense of maturity during the build – they want a building they can feel grown-up in.

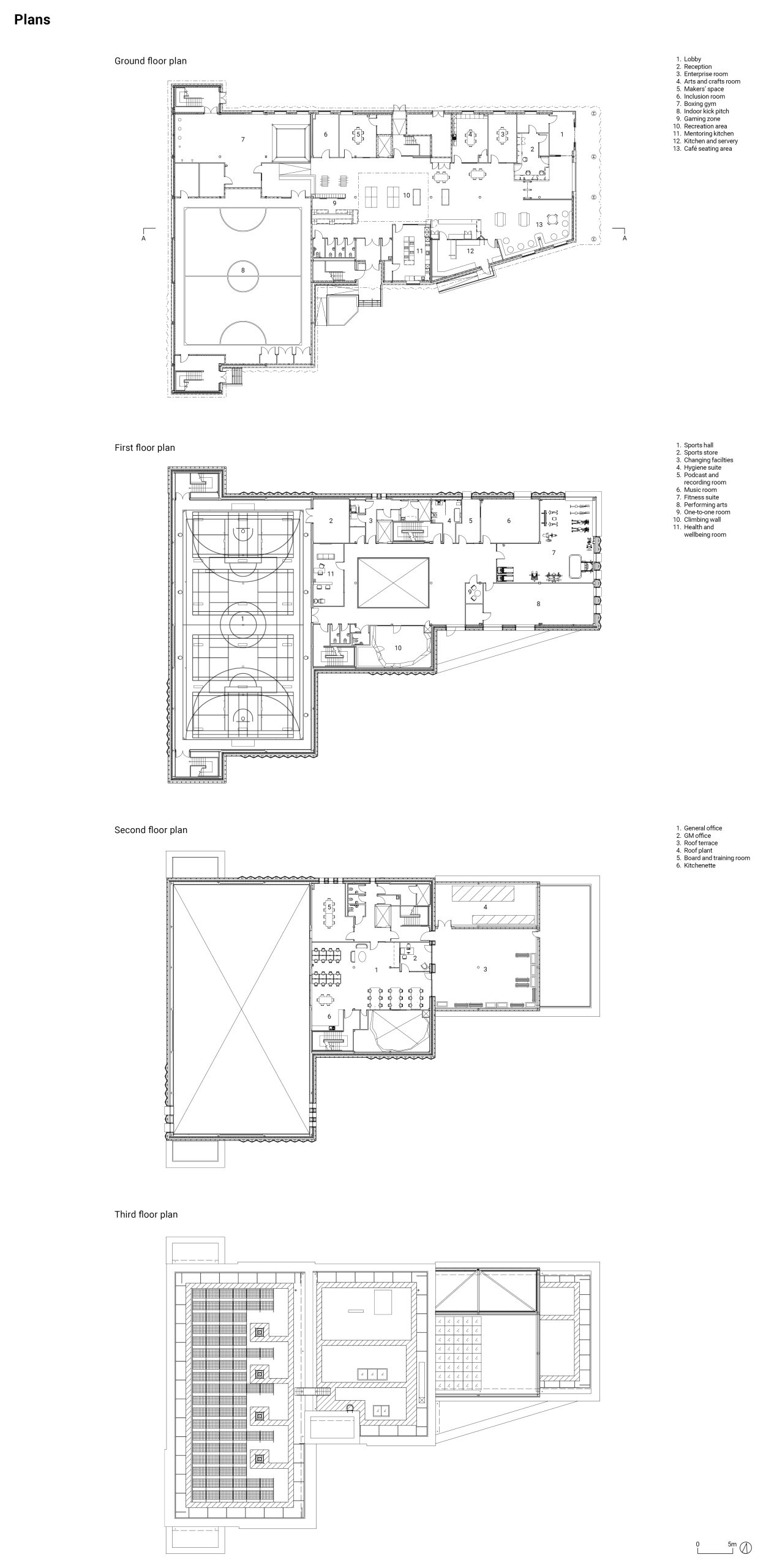
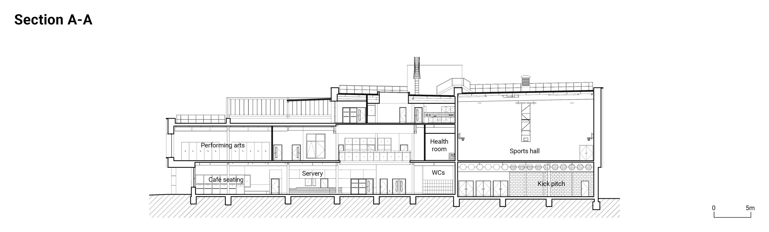
Inside, the tone shifts, but the rigour of the exterior remains. A double-height central space encourages social interaction, with sightlines extending to every activity zone, including the indoor kick pitch and sports hall stacked above it – also open to local providers and sports specialists. ‘The young people like to see what their friends are doing,’ says Stephen Burton, Vault’s marketing and communications co-ordinator. Every room has windows and natural light is worked hard into the deep three-storey volume without recourse to rooflights. It is a sophisticated set of spaces, each with its own specifications and requirements, yet the ensemble feels simple, welcoming and easy to navigate.
Its striking colour palette – developed with Lancaster College of Art-educated designer Ben Kelly, whose legendary 1982 Haçienda nightclub in Manchester for Factory Records has cult status – is all bright shades of orange, yellow and blue, with red used to subtly denote out-of-bounds areas. Coincidently, Kelly is based around the corner from JPA’s offices in Vauxhall, but his blocky, modernist graphic approach was put forward by a group of local designers responsible for Vault’s logo outside. He was also known among Preston’s younger crowd for a collaboration with the late fashion designer Virgil Abloh, founder of streetwear label Off-White. It was also the first time JPA had joined forces with another consultant on a colour scheme, despite designing numerous youth zones both for OnSide and other charities. ‘We were able to push this way further than before,’ says Aberson. In addition to colour zoning, industrial-style columns and diagonal striped fittings, hard-wearing finishes are used throughout. Each room has a distinct acoustic and particular flooring requirements for differing activities. ‘It is similar to designing a university building,’ observes Puttick. This level of sophistication also prepares young people for entering a higher education environment without experiencing ‘imposter syndrome’.

Vault’s internal floor area covers 2,900m2 – slightly smaller than JPA’s recent 3,000m2 Horizon Youth Zone in Grimsby – and is likewise operated by national charity OnSide, which, over 20 years, has opened a network of custom-designed youth facilities, some new-build, some retrofits, the majority sited in the country’s most disadvantaged areas, starting in Bolton. Preston is its 18th roll-out and there are many more in the pipeline. The offer remains consistent – £5 annual membership, 50p per visit, hot meals for £1 – but each centre adapts to local interests and builds upon lessons learnt from the last. ‘Trends change,’ points out Burton. In Preston, for example, cricket nets were non-negotiable, as local-born Freddie Flintoff still looms large in the memory. ‘Sports get the young people in,’ says Burton, ‘but we also have a “come and try things” philosophy.’ Young people can just come in and hang out and relax, too.
The café anchors the heart of the plan. Around the edges are music rooms, multimedia art studios and teaching kitchens – art is given particular prominence to avoid the feel of a sports centre – as well as social spaces with table tennis and a health and wellbeing room complete with barber’s chair and nail station. ‘That’s where the conversation happens,’ says Burton. Staff are specially trained for ‘difficult’ conversations and an additional sensory room offers decompression – or space for a nap. Girls-only sessions are being initiated in response to cultural and religious feedback. Some of the other centres run boys-only evenings.

The building’s independence is mirrored in its governance. As with other OnSide-run centres, 15 members of a Young Persons Development Group were consulted on everything from interiors to food – and will continue to meet. ‘It isn’t tokenistic,’ says Burton. ‘It’s a bottom-up approach.’ A young leavers’ programme also feeds back into the charity: one of the catering facilitators is a former member of another centre and one board member was among OnSide’s first teenage users, helping to bring the first three youth zones to London. ‘It comes full-circle,’ points out Burton – and it underscores OnSide’s long-term ambition.
During my visit, ‘vibe testing’ was under way – ranging from high-energy dodgeball to the more relaxed ‘cereal box game’, as 45 new staff members are being trained and rehearsing junior and senior sessions (OnSide caters for ages up to 19 and up to 25 for those with special educational needs and disabilities [SEND]). Seniors are apparently the most excited. At 50p a session, it is the cheapest gym you will find. ‘The investment makes them feel like it’s their place,’ Burton says, adding that the architecture ‘makes you want to explore’. On patrons’ day, donors couldn’t resist having a kickabout on the indoor pitch.

The timeliness of Preston Youth Zone’s opening is also notable. After 15 years of erosion in youth services, the government announced in December a £500 million National Youth Strategy – ‘Youth Matters’ – promising 250 new or refurbished centres and 50 ‘Young Futures’ hubs by 2029, the first national youth plan in many young people’s lifetimes. With the promise of levelling up opportunities, tackling isolation (and phone addictions), and rebuilding a sector that has largely been eroded by austerity, charities and grassroots organisations welcome the cash but are quick to point out that it cannot undo a decade and a half that has seen a 73 per cent cut in spending on youth centres and the closure of more than 1,000. At present, only one in 10 young people attends a youth club weekly in the UK.
Puttick’s practice, catapulted to prominence by the competition win for the bus station, has almost accidentally become a youth centre specialist, having completed several such projects around the country, including in Croydon, Blackburn and Grimsby, with another slated for Thurrock, most of them for OnSide. ‘Just 10 years ago, a youth centre was a big warehouse,’ he says. ‘Now the briefs are more tailored and much more interior design-led.’ The volumes may be similar, but the spatial puzzle has become more nuanced, for sure. ‘It is also about exceeding young people’s expectations,’ adds Burton.

Funding for Vault, as with other OnSide facilities, was split 50:50 between the local authority and grants. Construction, restarted in 2022 after the Covid-19 pandemic, took 14 months. ‘These buildings are our levellers,’ points out Vault CEO Jacques, who joined after working for 37 years in the police force. For him, and for the rest of the staff, Preston Youth Zone isn’t just a piece of architecture but more about what it facilitates: safe spaces, aspiration, upskilling, apprenticeship pathways (two apprentice youth workers are already on board), a complement to traditional education and somewhere just to have fun. In some ways, the youth zone extends the lineage of the bus station’s Modernist ambition – giving independence, agency and a seriousness of intent to a new generation. It is something that is ‘sadly, much needed’ Jacques says. It’s not difficult, spending time here and at Grimsby, to leave feeling optimistic, even evangelical, about what OnSide and its staff enable, with architecture playing a huge supporting role.
After 10 years in the making, the square is complete and in its ribbed façade and yellow stair towers the young people of Preston aren’t just inheriting a dependable, brand-new building of their own, but a stake in the city’s evolving history – and a place where they can be treated as equals. Vault demonstrates how carefully considered spatial design can reinforce agency and belonging without dominating. And, as Puttick says: ‘The way it is run mirrors this.’

Architect’s view
Vault Youth Zone is the culmination of our 10-year engagement with the regeneration of this part of Preston’s city centre. The refurbished bus station, public square and Youth Zone work together to create an animated and community-focused urban quarter.
The massing of the Youth Zone steps up from the public square, reducing the perceived scale of the building and integrating large volumes – including a four-court sports hall and indoor kick pitch – within a tight urban site. The design responds to the bus station opposite with a façade of folded light-grey fibre-cement panels, referencing the rhythm and tones of the Modernist building.

Sketch of Vault (credit: John Puttick Associates)
Internally, a central social space connects the arts, performance, fitness and enterprise activities. The ground-floor café offers a more intimate setting with booth seating, while a double-height volume visually connects to the first floor. Additional double-height spaces – including a full-height climbing wall and sports hall – create a strong sense of drama. A rooftop terrace provides valuable outdoor amenity space for young people in the city centre.
The building’s form and structural frame were optimised to reduce material use, while the envelope achieves high levels of insulation and airtightness. On-site energy generation, including 175m² of solar PV panels, supports the sustainable operation of Vault, and four roof-mounted windcatchers provide passive ventilation to the sports hall.
We worked closely in consultation with youth charity OnSide and young people’s groups throughout every stage of the design process and it has been exciting to see them begin using the building in recent weeks.
John Puttick, director, John Puttick Associates

Engineer’s view
We were delighted to work on this project with John Puttick Associates and main contractor Triton Construction. The project proved to be rewarding in many ways with the knowledge that, as a team, we were providing a fresh, vibrant and dynamic amenity for the youth of Preston.
The project addressed a wide range of demands on a site that was challenging, both geotechnically and logistically, while delivering a purposeful building that addresses a multitude of uses, including a two-storey sports hall requiring long spanning structures. These create open, uninterrupted spaces that also accommodate other activities, including dynamic sports such as weightlifting and rock-climbing.
The structural design of the sophisticated steel frame was undertaken to accommodate the architectural and internal environmental demands while maintaining structural performance, efficiency and overall buildability.
David Else, director of structural engineering, Caulmert

Client’s view
From the start, our aim was to create a youth space that felt vibrant, welcoming, and future-proof. Sustainability and energy efficiency were central to the design, helping to keep running costs low while ensuring the building is responsible to both people and planet. Flexibility was also key, so the spaces can evolve as our activities and needs change.
I love the iconic look of the building, both inside and out. John Puttick Associates has delivered a space that meets our brief perfectly – impactful, inclusive and engaging, while remaining a safe place for young people to grow, create, connect and thrive. The feedback we have had from young people has been overwhelmingly positive, many commenting on its vibrancy and ‘Tardis-like’ feel.
This building reflects what we believe in as an organisation: that investing in young people is investing in the future of our city. Seeing it come to life has been incredibly rewarding and it’s great to watch it become a place where young people feel at home, safe and excited to be themselves.
Tim Jacques, chief executive officer, Vault Youth Zone

Working detail
The choice of materials, particularly the external articulation and finishes, responded to the urban context of the site and its relationship to Preston Bus Station. A robust engineered brick base supports a striking chalk-white fibre cement board rainscreen that steps in three distinct blocks up and out from the main entrance on Tithebarn Street.
The blue brick base provides a robust and low-maintenance boundary to the public realm, contrasting visually and recessed against the lighter upper façade. A projecting brick coursing detail, two-thirds of the way up the brickwork, provides a textural banding to the ground floor, announcing the soffit return of the deeper oversailing fibre-cement volume perched above.
In a nod to the articulation of the concrete soffits of the bus station opposite, areas of the fibre-cement façade have been expressed with a rhythm of folded fluting. This articulation provides character and playfulness as light and shadow cast across the façade change throughout the day. Additionally, the fluted expression breaks up the massing to reflect the surrounding urban scale with texture and grain.
The building’s massing and façade design were detailed using the standard dimensions of the panels to inform the setting-out of the cladding and window opening sizes, thereby optimising the façade and minimising material waste.
Martin Aberson, associate, John Puttick Associates

Project data
Location Preston, Lancashire
Start on site September 2024
Completion November 2025
Gross internal floor area 2,912m2
Site area 2,330m2
Construction cost £8.9 million
Construction cost per m2 £3,056
Architect John Puttick Associates
Client OnSide Youth Zones
Structural engineer Ramboll (design stage), Caulmert (construction stage)
M&E consultant Hurstwood Environmental Consulting
Quantity surveyor Walker Sime
Project manager Walker Sime
CDM principal designer Jacob Feasey Associates
Building regulations principal designer John Puttick Associates
Fire consultant Clarke Banks
Approved building inspector Clarke Banks
Main contractor Triton Construction
CAD software used Revit, MicroStation
Sustainability data
Percentage of floor area with daylight factor >2% Not calculated
Percentage of floor area with daylight factor >5% Not calculated
On-site energy generation 19%
Heating and hot water load 86.02 kWh/m2/yr
Operational energy Not calculated
Total energy load Not calculated
Carbon emissions (all) Not calculated
Annual mains water consumption 1.82 m3/occupant
Airtightness at 50Pa 3.5 m3/h.m2
Overall thermal bridging heat transfer coefficient (Y-value) Not calculated
Overall area-weighted U-value 0.33 W/m2K
Annual CO2 emissions 13.2 kgCO2eq/m2
Embodied carbon Not calculated
Whole-life carbon Not calculated
Predicted design life 60+ years
Energy Performance Certificate rating A
