The new home replaces a small 19th-century dilapidated bungalow which had reached the end of its life after being poorly adapted and extended in the 1950s and 70s.
It was self-built by the contractor client, using directly employed specialist subcontractors and has been shortlisted for a 2026 RIBA South East regional award.
Located on a narrow sloping 70m-long plot behind the main high street of the historic Sussex village of Cuckfield, the site has distant views to the South Downs National Park and backs on to old brick fields to the south.
This part of Cuckfield is described as the modern fringe, having been piecemeal developed over the years with a range of typologies, and there was no clear grain to work from. Instead, the practice used the proximity of neighbouring properties and the natural topography as drivers for the form and massing of the design.
The house follows the site’s slope, which has a 4m fall from Ardingly Road at its northern end to the bottom of the south-facing garden, with increasing ceiling heights as it steps down the hill.

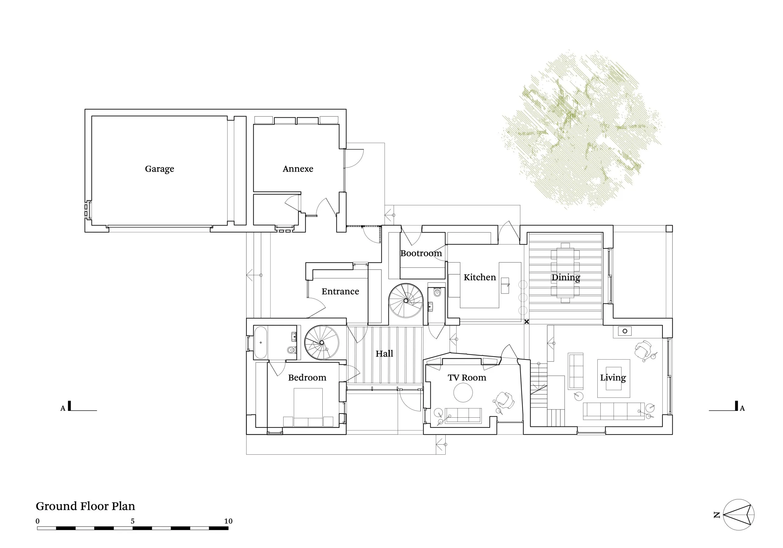
The ground floor is laid out as a rectilinear plan cut into at the perimeter to bring light into the home while providing external sheltered spaces.
Forming a plinth on top of this sit three first-floor bedroom ‘towers’, each accessed by its own private stair. This creates separate areas for the client and their grown-up children.
Each tower has a monopitched copper-clad roof oriented in different directions to break down the scale of the building at upper floor level. Each double aspect provides views over the garden while preventing overlooking from adjacent properties.
A covered external link connects the main house to a separate single-storey garage and annexe wing, framing the entrance yard. Within this is a ground-floor bedroom and flexible space designed to suit a variety of functions, ranging from a home office and gym to a small Airbnb let.

The exterior is built from a palette of robust self-finished materials, using a waterstruck soft red brick laid in lime mortar, detailed with precast concrete elements.
Internally, the flexible structural grid is zoned by different ceiling finishes combined with exposed Douglas fir joists, bespoke cruciform steel columns and painted brick.
The scheme targets a fabric-first approach to sustainability, using an air-source heat pump, PVs and a high-performance envelope.
Work started on the scheme in 2021 during Covid. Construction then took longer than anticipated due to availability of funds and the client’s other work.
In 2023, the practice completed a collonaded villa set in sweeping parklands, also in the South Downs.

Architect’s view
The house follows a slope, gradually stepping down and offering increasingly generous ceiling heights in the principal living spaces.
At ground floor, the house is laid out as a simple rectilinear plan that is cut into around the perimeter to bring sunlight and daylight deeper into the plan and provide sheltered external spaces. Out of this plinth rise three bedroom ‘towers’ at first floor level with simple monopitch roofs orientated in different directions. Their separation allows each to benefit from a dual aspect with views over the garden and prevents any overlooking or loss of privacy for the adjacent properties on the east and west boundaries.

Model photo
A covered external link connects the main house to a separate single-storey garage/annexe wing framing the entrance courtyard.
The house has been built from a simple palette of robust self-finished materials, which will weather naturally, develop character and reflect the tonal and textural qualities of the site and the surrounds. Externally, a waterstruck soft red brick laid in lime mortar is accented with precast concrete elements and copper standing seam roofs.
Sandy Rendel, director, Sandy Rendel Architects
 
Project data
Location West Sussex
Local authority Mid Sussex District Council
Planning consent June 2020
Start on site April 2021
Completion date March 2024
Gross internal floor area Main house: 256m², garage and annexe: 73m², total: 329m²
Form of contract Self-build with directly employed subcontractors
Construction cost Undisclosed
Client Mark and Gaynor Brooks
Main contractor OAC Build (Mark Brooks)
Architect Sandy Rendel Architects
Structural engineer Structure Workshop
Civil engineer (drainage) CGS Civils
Landscape designer Studio Stour
Approved building inspector AIS Surveyors
CAD software used Vectorworks