Now in its 31st year, AJ Small Projects continues to champion architecture that punches above its weight – inventive, tightly briefed schemes delivered on modest budgets but with huge imagination.
More than 170 entries were submitted this year, all now available in the AJ Buildings Library. From these, a shortlist of 20 standout projects has been selected.
Each was completed for under £399,000. While that cap has risen over time, the awards’ purpose remains unchanged: to celebrate projects that achieve more with less through design excellence.
Last year’s 30th anniversary produced three joint winners, including an ultra-low-carbon forest hub by Material Cultures with Central Saint Martins, a lyrical loft extension by OEB Architects, and a playful all-weather classroom by WonKy.
This year’s shortlist is as diverse as ever, spanning public realm schemes, studios and workshops, cafés, theatre lobbies, pavilions, community hubs and a series of inventive home extensions.
Across the board, the projects demonstrate how thoughtful design can improve everyday life – from enabling a disabled resident to access a garden, to creating a shelter for dog walkers, or an ‘outdoor living room’ within a housing development.
Community-focused work is also particularly prominent this year, including a radio pod, a revitalised market street, a housing association hub and a youth support space within a heritage building.
Sustainability and circular economy principles are also evident, especially in material choices. Natural materials such as cork render, timber and limecrete feature strongly, alongside growing levels of reuse – from reclaimed joinery and brick to roof vents repurposed as rooflights.
For the first time, the judging and awards event will take place outside London, hosted at the University of Liverpool School of Architecture’s new extension by O’Donnell + Tuomey. The 20 shortlisted teams will present live to a jury in a crit-style session, followed by the evening announcement of the winners.
The event will also feature an exhibition of shortlisted projects and mark the awards’ 15-year partnership with Marley. The last remaining free tickets are available here.
The second half of this year’s shortlist will be revealed tomorrow, when we will also be launching a reader poll.
Forest Studio
£109,000

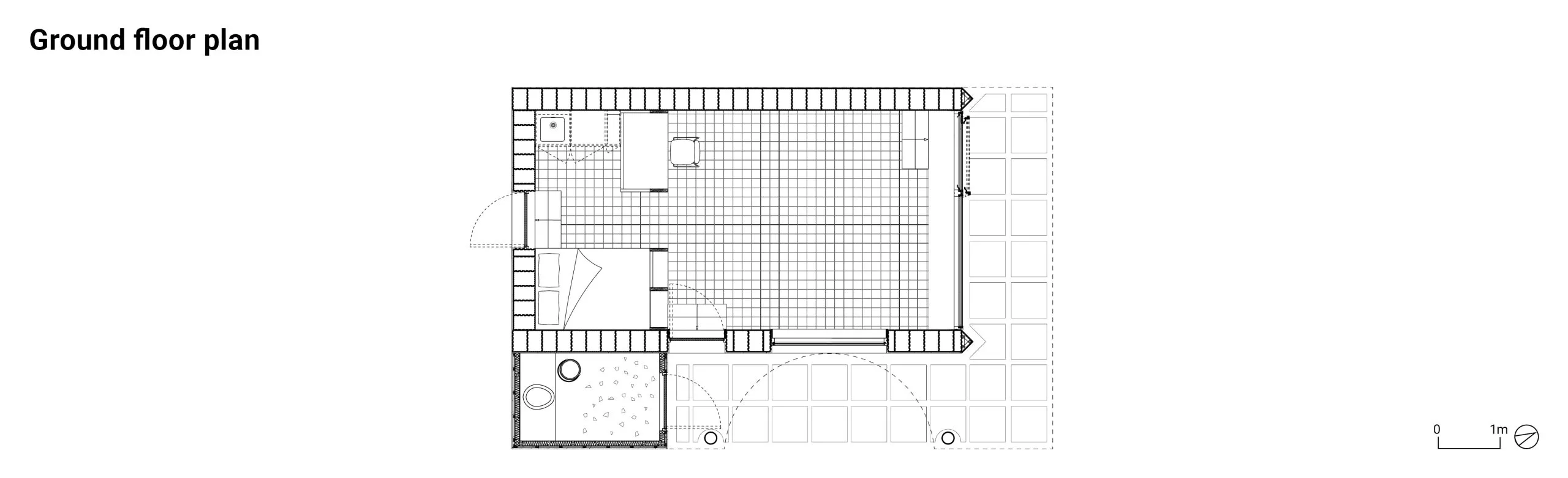
This studio sits in the back garden of a 1930s semi-detached house on the edge of Epping Forest. Conceived as a space for an artist and fashion designer, the new-build structure explores forms of construction inspired by its suburban and woodland context.
Partially sunk into the ground, the main studio has a large internal volume which would have otherwise been restricted by permitted development heights. Its enclosure is pulled back from the southern boundary to form a courtyard with a scooped roof, bringing light deep into the studio’s interior. A projecting canopy provides protection to a raised deck and is clad in profiled aluminium to reflect the garden’s colours and vivid red window frames. A reclaimed telegraph pole and cork columns provide tactile contrast.
Constructed from a single skin of clay blocks and Douglas fir beams, the studio is highly insulated, featuring breathable external lime render and a sedum roof harvesting rainwater. A lightweight annexe is clad in woven hazel and encases a composting toilet and secure storage.
Inside, the material palette was chosen to contrast with the coolness of the exterior: baked earth tiles, cork ceiling and spruce plywood furniture – with soft furnishings made by the client.

Location London E4 | Start on site March 2024 | Completion September 2025 | Gross internal floor area 30m2 | Client Private | Funding Private | Structural engineer Hockaday Consulting | Services engineer N/A | Main contractor Build with Passion | Annual CO2 emissions Not calculated | Embodied carbon 395 kgCO2e/m² | Whole-life carbon 414 kgCO2e/m² | Design life 60 years | Photography Max Creasy
See more photos and drawings of this project in the AJ Buildings Library
A Room for All Stages
£230,000

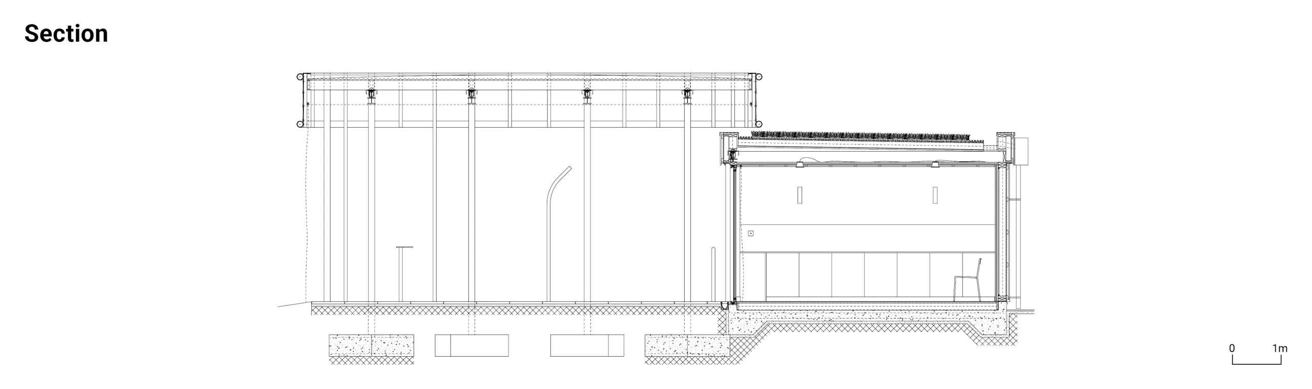
Sitting on a sloping site, this rear extension to a semi-detached house is designed to enable a paralysed relative to enjoy the garden and share in family celebrations with dignity.
The project consists of a cast-in-situ concrete cantilever that extends out from the house’s ground floor and was designed and built by hand by the joint architecture and engineering practice. This creates a spacious lozenge-shaped kitchen and dining area with views over rooftops to the South Downs, with a small terrace at the back sitting at the top of cantilevered steps down to the garden.
The façade is hung with 1,900 tiles, inspired by traditional ‘mathematical tiles’ common to the South of England, and hand-made on-site using a proprietary moulding system developed by the practice. Their rough texture is designed to sit against the clean lines of glazing and window box elements, which are accented in ‘Signal Red’. The structure was designed to Passivhaus standards.
Internally, the same red lends accents to an otherwise calm palette of Douglas fir, polished concrete and fluted glass, with an exposed structural skeleton of oiled laminated veneer lumber roof joists above.

Location Brighton | Start on site May 2023 | Completion December 2024 | Gross internal floor area 33m2 | Client Private | Funding Private | Structural engineer BanfieldWood Consulting | Services engineer N/A | Main contractor BanfieldWood Bespoke (self-build) | Annual CO2 emissions Not calculated | Embodied carbon 497 kgCO2e/m² | Whole-life carbon 510 kgCO2e/m² | Design life 100 years | Photography Jim Stephenson
See more photos and drawings of this project in the AJ Buildings Library
Castlands Road
£312,500

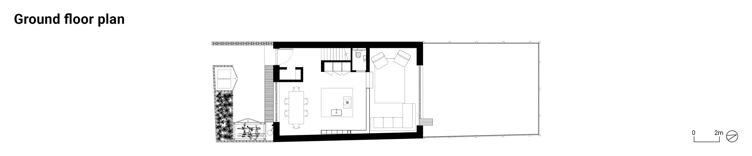
Based in Catford, south London, this self-build house has been constructed for the practice’s director, William Howard, and his young family.
Conceived as a ‘terraced house in waiting’, the house sits on a plot with potential for future neighbouring homes on both sides. Simple in form, it has a pitched roof and climate-resilient timber canopy, referencing nearby bay windows.
Inside, the living spaces are open plan and arranged across three levels. At the heart of the kitchen is a single large island.
Taking a low-budget and low-carbon approach to construction, bricks were reclaimed from site leftovers and salvaged stock. The external walls’ inner leaves were built from clay blocks, parge-coated to provide airtightness while remaining breathable. Internally, exposed British larch joists and rafters sit alongside solid oak and plywood joinery, all used sparingly. Much of the joinery, linings and furniture was tested and made by hand after Howard had already moved in.
The house is all-electric with underfloor space heating and water heated by a small air source heat pump.

Location London SE6 | Start on site October 2023 | Completion July 2025 | Gross internal floor area 112m2 | Client William Howard | Funding Private | Structural engineer Simple Works | Services engineer N/A | Main contractor Self-build | Annual CO2 emissions 10.9 kgCO2/m2 | Embodied carbon 631 kgCO2e/m2 | Whole-life carbon 1,472 kgCO2e/m2 | Design life 60 years | Photography William Howard
See more photos and drawings of this project in the AJ Buildings Library
Tabberner Cook House
£330,400

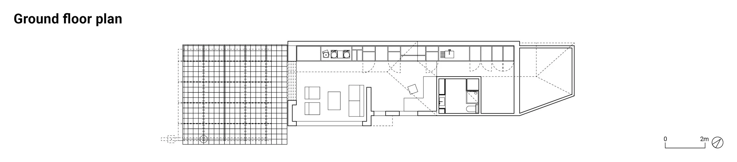
Located on a prominent street-facing corner plot in Crystal Palace, the design of this domestic extension had to negotiate a challenging, steep site and a brief that required the integration of domestic space with gardening and horticulture amenities.
Its split-level arrangement accommodates a new kitchen, dining area and sunken lounge, alongside a series of flexible auxiliary spaces: a utility, pantry, bike workshop, potting room and internal greenhouse.
The potting room shares a direct relationship with the living spaces, while a glazed south-west-facing façade with bespoke oak-framed windows, connecting directly to the terraced garden, is openable to admit heat and air to regulate the internal environment.
Tectonic refinement and material honesty define the construction. An engineered, exposed glulam timber frame forms a deep waffle slab roof structure, with timber beams and columns resting on a white brickwork plinth. All the timber members were precut for on-site assembly, with fixings left exposed to express the construction methodology. Externally, the upper levels are clad in natural zinc, intended to patinate over time, while a stepped wall of white brick creates a boundary to the street.

Location London SE19 | Start on site June 2023 | Completion December 2024 | Gross internal floor area 102m2 | Client Private | Funding Private | Structural engineer Three Six Design | Services engineer N/A | Main contractor Techneco Homes | Annual CO2 emissions Not calculated | Embodied carbon 681 kgCO2e/m2 | Whole-life carbon 502 kgCO2e/m2 (excluding operational energy) | Design life 75 years | Photography Johan Dehlin
See more photos and drawings of this project in the AJ Buildings Library
The Big Shed
£393,300

Situated next to a World Heritage Mining Site on the North Cornwall coast, this hub has been created for community interest company (CIC) Community Roots, which cultivates a one-acre, ‘no-dig’ market garden. The brief called for a robust, low-budget building to expand the CIC’s processing capacity and community outreach.
Inspired by agricultural vernacular, the building is a simple timber-framed form that sits low in its landscape and is clad in UK-grown thermally modified ash. Mirroring the client’s ‘no-dig’ cultivation approach, the structure has minimal strip foundations, making it almost concrete-free.
The north façade is barn-style, while the southern elevation has a series of windows and sliding doors facing the garden.
Internally, finishes are deliberately raw – OSB, wood wool ceilings and an industrial kitchen – reducing the need for additional trades and labour on site during the build. Integrated storage accommodates fold-out furniture, allowing the space to pivot flexibly from vegetable bagging to yoga class to pickling party.
Intended to be net zero in operation, the highly insulated fabric is ventilated via MVHR and has a full roof of PVs. There are step-free thresholds throughout and a Changing Places WC is incorporated, inclusively extending a welcome to all.

Location Porthtowan, Cornwall | Start on site August 2024 | Completion June 2025 | Gross internal floor area 106m2 | Client Community Roots CIC | Funding Good Growth Cornwall, Isles of Scilly Shared Prosperity Fund | Structural engineer Martin Perry Associates | Services engineer Natural Generation | Main contractor Warvena Construction | Annual CO2 emissions 33.17 kgCO2/m2 | Embodied carbon 345 kgCO2e/m2 | Whole-life carbon 1180.88 kgCO2e/m2 | Design life 60 years | Photography FORM Photography
See more photos and drawings of this project in the AJ Buildings Library
Randall Pattern Play
£40,000

This public artwork, commissioned by Wandsworth Council, is part of the public realm of a social housing development in Randall Close on the recently completed Surrey Lane Estate. Designed to be an ‘outdoor living room’, the project comprises two large, sofa-like sculptural benches and three clusters of modular seating cubes, crafted from bespoke hand-decorated glazed bricks, which sit on a carpet-like surface of bespoke brick paving.
The colours and abstract geometric and floral motifs of the benches were inspired by the Arts and Crafts patterning of mosaic floors produced locally in the 19th century by the Rust Mosaic Tile Company.
Game boards – chess, backgammon and noughts and crosses – have been embedded into the seating to encourage multi-generational and community interaction.
The decorative pavers were made using a hybrid process of digital fabrication, inlaying by hand and industrial production, merging traditional craft with contemporary technology.
The designs were co-developed through creative workshops with the local school and engagement with community members. The public art strategy and curation was by consultant Susie Gray.

Location London SW11 | Start on site December 2024 | Completion May 2025 | Gross floor area 17m2 | Client Wandsworth Council | Funding Wandsworth Council | Structural engineer Hill Group | Services engineer N/A | Main contractor Hill Residential | Annual CO2 emissions 6-7 kgCO2/m² | Embodied carbon 28 kgCO2e/m² | Whole-life carbon Not calculated | Design life 100 years | Photography Floro Azqueta
See more photos and drawings of this project in the AJ Buildings Library
Culmore Fort
£198,000

This project restores a 15th-century tower house at Culmore Point, where the River Foyle meets Lough Foyle. Heavily contested during the 17th century and later extended in 1830 as a ferryman’s home, the building had stood empty for decades. The restoration transforms it into a space supporting the health and wellbeing of young people while also serving as a heritage centre, with 12 local residents trained as guides.
Working with Northern Ireland’s Heritage Division, cement render was removed from the former fort to reveal earlier stonework. Reclaimed brick, stone and timber were used, two blocked alcoves reopened and the 1980s roof rebuilt and reinsulated with hemp. The Irish limestone floor was relaid over a Foamglas and limecrete base.
The middle floor was reconstructed using reclaimed beams set into existing openings, while original joists, turned on their sides, were reused to form the ceiling. A new timber stair also provides seating and a second stair leads to a reopened upper room. Externally, fencing was removed and reclaimed Oregon pine from the former Second World War US Army base on Culmore Road used for seating.

Location Derry, Northern Ireland | Start on site January 2025 | Completion June 2025 | Gross internal floor area 150m2 (39m2 useable) | Client Culmore Community Partnership | Funding Village Catalyst (cross-departmental Northern Ireland fund), Architectural Heritage Fund, The Honourable The Irish Society, Garfield Weston | Structural engineer MWL Structural Engineers | Services engineer N/A | Main contractor We-Build | Annual CO2 emissions 18.63 kgCO2/m2 | Embodied carbon Not calculated | Whole-life carbon Not calculated | Design life 50-100 years | Photography Elyse Kennedy
See more photos and drawings of this project in the AJ Buildings Library
Exeter Road Pavilion
£279,400

This adaptive reuse of a modest Victorian garden outbuilding saw it reimagined for use by an art collector and amateur DJ to store books, records and artworks and to host garden gatherings, workouts and games of ping-pong.
The project brief was twofold: to create an interior cabinet for storage integrated with an exterior canopy for shelter. A 20m-long ‘cabinet of curiosities’ runs along one wall out into the garden, accommodating art storage and display, shelves for books and vinyl records, a DJ booth, television, ping-pong table, free weights and garden games. It is unified by a perforated stainless-steel surface, which shifts perceptually between transparency, reflection and opacity, depending on light conditions.
The cabinet supports one side of a canopy sheltering an outdoor space. Its other side is given visual drama by the supporting structure of a galvanised steel I-beam seemingly balancing on a single column. One end of this is tied down to a concrete block with an exposed tension rod and it is counterbalanced at the other end by a block of custom-milled green marble, nestling within the I-beam’s web, adding a luxe accent to the whole.

Location London NW2 | Start on site September 2023 | Completion May 2025 | Gross internal floor area 48m2 | Client Nikos Makris | Funding Private | Structural engineer Constant Structural Engineers | Services engineer N/A | Main contractor Haydon Finch Construction | Annual CO2 emissions 12.5 kgCO2/m2 | Embodied carbon 190 kgCO2e/m2 | Whole-life carbon 940 kgCO2e/m2 | Design life 60 years | Photography Lorenzo Zandri
See more photos and drawings of this project in the AJ Buildings Library
Shine a Light on Wilcox Road
£65,000

Based in Nine Elms, London, this public realm intervention aims to revitalise a historic market street and strengthen local identity through a series of light-touch architectural and graphic interventions. Commissioned by Lambeth Council with the London Festival of Architecture, the project was designed in collaboration with local artist Simon Hills after it won a competition in 2022.
Existing infrastructure, including lamp standards and street furniture, was reused where possible, some of it painted pink. A flexible design toolkit and colour palette was developed to enable phased delivery, adapt to budgetary constraints and tackle onsite challenges.
The installation introduces a series of colourful banners, a co-designed mural and a bespoke illuminated gateway sign that marks Wilcox Road as a threshold between South Lambeth Road and the new Nine Elms Underground Station.
Community engagement was central to the project. Iconography, signage and banner graphics were developed in workshops with residents and retailers. They celebrate the diversity of businesses in the street and its long-standing Portuguese community. Rotating murals by local artists provide a lasting framework for cultural expression.

Location London SW8 | Start on site January 2025 | Completion June 2025 | Gross internal floor area N/A | Client London Borough of Lambeth | Funding London Borough of Lambeth | Structural engineer Simple Works | Services engineer Bouygues UK | Main contractor Bouygues UK | Annual CO2 emissions Not calculated | Embodied carbon Not calculated | Whole-life carbon Not calculated | Design life 10 years | Photography Nathan Piccio
See more photos and drawings of this project in the AJ Buildings Library
MIMA Garden Pavilion
£230,000

This pavilion sits between Middlesbrough Central Library and Middlesbrough Institute for Modern Art (MIMA) in a small urban garden which plays host to events ranging from community meals and graduation ceremonies to yoga and art installations.
The pavilion is designed to provide a focus for activities in the garden as well as to be a venue for workshops and more informal gatherings. It consists of a rectangular event space and, overlapping this, a taller, round exterior canopy. The latter is constructed of raw galvanised steel elements in a shape inspired by Teesside’s industrial structures of silos and gasometers.
Across the garden, a yet-to-be-realised, open framework of Cor-ten steel is planned to provide another informal focus for activities, its colour designed to echo the warm, brick-red tones of the library.
To meet funding deadlines, delivery occurred at speed, moving from concept design through planning to tender over the course of 12 weeks. The structures were carefully set out to avoid multiple lines of underground infrastructure crossing the site.

Location Middlesbrough | Start on site June 2025 | Completion June 2025 | Gross internal floor area 46m2 | Client Teesside University, Middlesbrough Institute for Modern Art (MIMA) | Funding Arts Council England | Structural engineer BGP | Services engineer NEECO | Main contractor AWG | Annual CO2 emissions Not calculated | Embodied carbon 351 kgCO2e/m2 | Whole-life carbon Not calculated | Design life 25+ years | Photography 2812 Studio, James Longfield
See more photos and drawings of this project in the AJ Buildings Library
