1031-1045 Clayton Street, rendering by Schaub Li Architects
Preliminary permits have been filed with updated plans for 1027-1049 Clayton Street in the Haight-Ashbury neighborhood of San Francisco. The project would develop five parcels with nine units. Schaub Li Architects is responsible for the application and design.
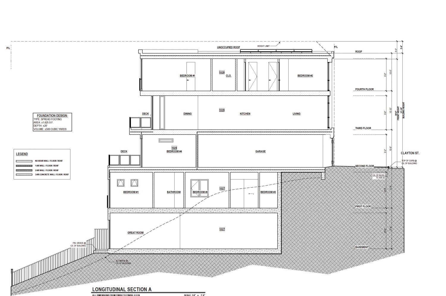
The development will include nine units across five five-story buildings, conforming to the steep parcel. Parking will be included for nine cars and nine bicycles. Each dwelling will offer two bedrooms.

1027-1029 Clayton Street vertical cross-section, illustration by Schaub Li Architects

1027-1029 Clayton Street, rendering by Schaub Li Architects

1043-1045 Clayton Street Historic Survey field notes, document via SF Planning
Demolition of the existing house will be required. As an aside, while reviewing historical records, I found an unusual note in the 1976 historic survey of the building, published by the San Francisco Planning Department. There are two handwritten notes in the Field Notes section. The first note describes the building as “present day contractor-builder vernacular ‘High’ art.” The second comment, in different handwriting, says, “Ms. McGinley gonna hate you.” Now I have no clue what this is about, nor who Ms. McGinley might be. If anyone knows, please share with me! I’m rather curious.

1027-1033 Clayton Street, image via Google Street View
The property owner is a Sunnyvale-based company named OBT LLC. The pre-application invokes Senate Bill 330 to streamline the approval process and planning for the future formal application. The estimated cost and timeline for construction have yet to be shared.
Subscribe to YIMBY’s daily e-mail
Follow YIMBYgram for real-time photo updates
Like YIMBY on Facebook
Follow YIMBY’s Twitter for the latest in YIMBYnews
1027-1029 Clayton Street 1031-1033 Clayton Street 1043-1045 Clayton Street 1047-49 Clayton Street Schaub Li Architects
.