Construction has officially started for a new senior housing community at 2125 Telegraph Avenue in Uptown, Oakland. The eight-story project, named The Eliza, will bring nearly 100 apartments for residents aged 62 and older to a corner lot near the 19th Street BART Station. Mercy Housing California is the project developer.
Speaking at the event, Councilmember Carroll Fife said, “I am thrilled that this critical and long-awaited project is finally breaking ground. Increasing permanent supportive housing for vulnerable populations in our city continues to be a high priority, and with this project, we will see the development of 96 additional affordable units. It is especially important that residents of The Eliza will be provided with supportive services to ensure they remain housed. Thank you to all involved in making this a reality.”

2125 Telegraph Avenue, image courtesy Mercy Housing

2125 Telegraph Avenue crane installation underway, image by author
Once complete, The Eliza will include 97 units, with 96 affordable studios and one two-bedroom apartment for the on-site property manager. Twenty studios of the apartments will be reserved for seniors exiting homelessness. The developer says LifeLong Medical Care will oversee case management services for these residents, ensuring individualized support for health, wellness, and long‑term stability.
Tiffany Bohee, President of Mercy Housing California, said during the ceremony, “This groundbreaking is a pivotal moment made possible by our incredible public, private, and philanthropic partners, whose commitment and financial support brought us to this day. By pairing affordable housing with on‑site services, The Eliza will help Oakland’s seniors age in place in the city they’ve helped shape — and we’re excited to welcome residents home when doors open in 2027.”

2125 Telegraph Avenue corner facade closeup, rendering by Gensler

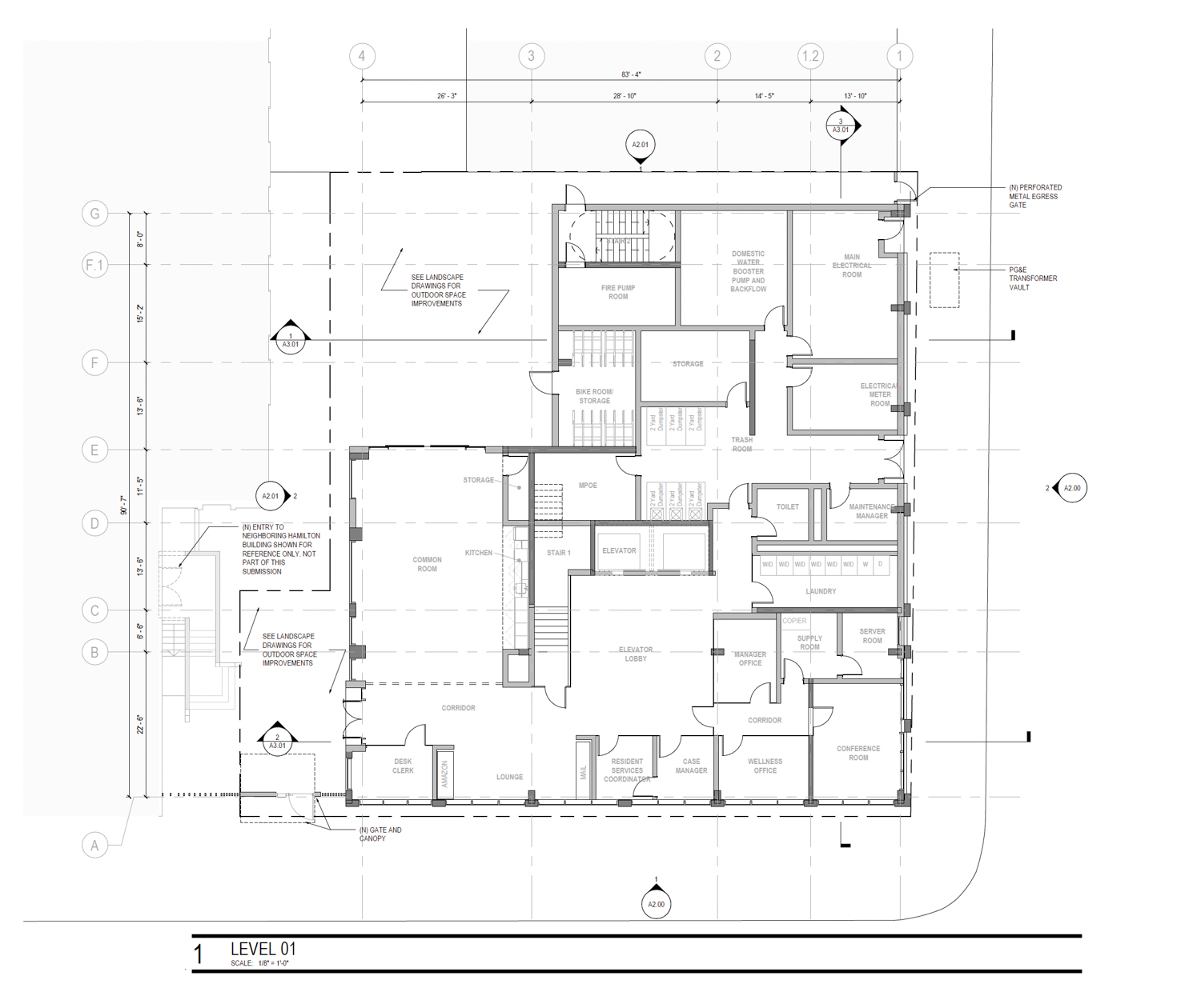
2125 Telegraph Avenue floorplan, illustration by Gensler
Gensler is responsible for drafting the design, with PGAdesign serving as the landscape architecture. Renderings show the complex will feature a contemporary facade with composite fiber cement panels and metal-framed windows. Residential amenities will include access to a rooftop deck, courtyard, community room, kitchen, on-site laundry, and bicycle parking.
The roughly 0.2-acre property was a former surface parking lot for the next-door Hamilton Apartments, also owned by Mercy Housing. The structure will rise at the corner of Telegraph Avenue and 22nd Street, one block away from Broadway and two blocks from the 19th Street Oakland BART Station, and Lake Merritt is just a few blocks away.

2125 Telegraph Avenue under construction, image by author
With construction now underway, residents are expected to start moving in as early as September 2027, with full lease-up anticipated by 2028.
Subscribe to YIMBY’s daily e-mail
Follow YIMBYgram for real-time photo updates
Like YIMBY on Facebook
Follow YIMBY’s Twitter for the latest in YIMBYnews