263 Lee Avenue, rendering by OpenScope Studio
Demolition permits have been filed for a vacant single-story church at 263 Lee Avenue in Ingleside, San Francisco. Plans to replace the structure with a three-unit apartment complex were approved last May. Shahin Saneinejad is the property owner responsible for the application.
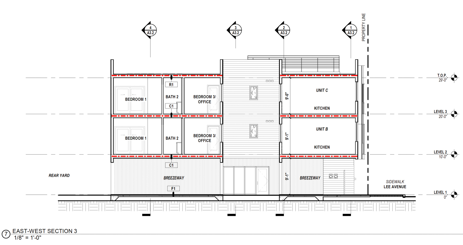
The 33-foot-tall structure is expected to yield around 4,270 square feet, with two three-bedroom apartments and a ground-level two-bedroom apartment, zoned as an accessory dwelling unit. The residences are expected to be available for ownership. OpenScope Studio is responsible for the design.

263 Lee Avenue vertical cross-section, illustration by OpenScope Studio

263 Lee Avenue in center, image via Google Street View
In the Summer of 2019, the previous owner, Rescue Prayer Mission, listed the property for $1.5 million. According to city records, the property sold in 2020 for just $710,000, less than half of the original asking price. The church has been vacant since 2013.
Construction is expected to cost around $1.5 million, with the groundbreaking timeline not yet established. The team missed the previous estimated late-December 2025 start date from the project application filed in May 2025.
Subscribe to YIMBY’s daily e-mail
Follow YIMBYgram for real-time photo updates
Like YIMBY on Facebook
Follow YIMBY’s Twitter for the latest in YIMBYnews
263 Lee Avenue OpenScope Studio
.