Unicorp National Developments expects to break ground soon on a multifamily community its founder says will bring a level of luxury living that’s unique in the Orlando rental market.

Unicorp President Chuck Whittall told GrowthSpotter he hopes to start construction within 90 days on The Luxe at Dr. Phillips, located at the corner of Fenton Street and South Apopka Vineland Road.

The $100 million, 200-unit apartment community will rise near the developer’s $1 billion-plus, 354-acre mixed-use O-Town West project off of Daryl Carter Parkway near Universal theme parks. Construction is expected to take 18 to 24 months.

Whittall said The Luxe is a “super high luxury project” that will stand out even among the area’s other high-end communities.

“Nobody has a rental community like we’re building,” he said. “It’s going to be next level — like something you’d expect to find in Palm Beach.”

A rendering of The Luxe at Dr. Phillips apartment community planned by Unicorp. CEO and President Chuck Whittall describes The Luxe as a "super high-end" product that will be unlike anything else in the Orlando area. (Courtesy of Slocum Platts Architects)A rendering of The Luxe at Dr. Phillips apartment community planned by Unicorp. CEO and President Chuck Whittall describes The Luxe as a “super high-end” product that will be unlike anything else in the Orlando area. (Courtesy of Slocum Platts Architects)

He said The Luxe will include units with real hardwood floors, marble tile in bathrooms, upgraded ceiling and door heights, larger windows, wine coolers in kitchens, quartz countertops and built-in refrigerators. Rental rates are expected to start at $3,000 a month.

Whitall said Lifescapes International was the project’s landscape architect for the initial drawings. The California-based firm brings experience that includes work on Las Vegas’ Bellagio Hotel & Casino and Wynn Las Vegas — experience Whittall hopes will bring a more resort-like aesthetic to the project, which will include cabanas and other high-end outdoor amenities.

Other firms involved include Maitland-based Slocum Platts Architects and the Orlando office of Kimley-Horn as project engineer and landscape architect.

Unicorp bought the land for The Luxe, and about 78 acres directly west of it, for about $5 million in July 2025 from Kerina Wildwood Inc., an entity related to Marcent Florida, an Orlando-based real estate consultant. Plans state that the larger parcel will be platted as a conservation area with development rights dedicated to the county before issuance of a certificate of occupancy.

The land is zoned ORG-PD (Planned Development) and located within the Karina Parkside PD and the Buena Vista North overlay district. The property has a future land use of low/medium density residential. The site for Luxe is bordered to the south by the Rosen Jewish Community Center of Southwest Orlando.

The project has evolved since site plans were first submitted to the county in 2023. Whitall said that’s not unusual for this kind of project: “The high-end luxury design has just taken longer than we’d hoped.”

Those plans show a detached four-story parking garage with 209 spaces north of the 5-story main building with 182 units and 18 townhome units.

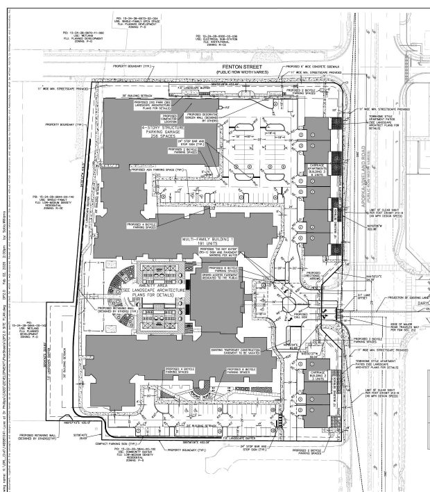
The current plans for The Luxe at Dr. Phillips were filed with the county in early February and include numerous changes from ones submitted to the county in 2023. The original plans included a penthouse unit and more townhouses. (Site plan by Kimley-Horn)

Site plan by Kimley-Horn

The current plans for The Luxe at Dr. Phillips were filed with the county in early February and include numerous changes from ones submitted to the county in 2023. The original plans included a penthouse unit and more townhouses. (Site plan by Kimley-Horn)

The current plans, submitted to the county Feb. 3, show a 4-story parking garage with 256 spaces attached to the 5-story, 191-unit main building. There are nine townhome units, six to the north and three to the south, split by the driveway. The main building now has 73 one-bedroom, 98 two-bedroom and 20 three-bedroom units with no penthouse. There are 141 surface parking spaces and 38 spots for bicycles.

The PD has an open space requirement of 1.95 acres (25%), with plans showing 2.9 acres (about 37%). The required parks and recreation space based on population (420) is 1.05 acres, with plans showing 1.98 acres split evenly between passive and active.

The main amenity will be located in an interior courtyard, featuring a pool, clubhouse, outdoor seating, grills, fire pits, yard games and pickleball courts.

There is a passive recreation area on the north side of the property with shaded seating, a picnic area, a bench and a dog park. Another on the south side features shaded seating, a picnic area, bench, yard games and grills. Several smaller areas are located throughout the property.

Last fall, Unicorp broke ground on the final phase of Glasshouse, a luxury apartment complex in O-Town West, with construction expected to take between two and two-and-a-half years. The phase will include two additional 5-story buildings with a combined 591 units, according to plans filed with the county. Unicorp opened an existing 302-unit building in 2022.

Brian Bell can be reached at bbell@orlandosentinel.com. Have a tip about Central Florida development? Email Newsroom@GrowthSpotter.com. Follow GrowthSpotter on Facebook and LinkedIn.