ITHACA N.Y. — The City of Ithaca Planning & Development Board weighed in on a quartet of projects on Jan. 27.
Among the plans were a pair of housing developments on the West End, a new proposal in Collegetown, and site improvements at the Finger Lakes ReUse property on Elmira Road. While the Collegetown proposal was received warmly, traffic circulation concerns dogged the ReUse proposal during its first trip to the board.
Here’s a summary of three hours of discussion in less time than it takes to drink a cup of coffee. Feel free to dive in below for this month’s report. For those who wish to take a gander at the agenda as they read through, that may be found here.
Site Plan Review
The Site Plan Review portion makes up the bulk of the discussion at planning board meetings. Board members review new and updated building proposals.
The Citizen (602 West Buffalo Street)

First on the board’s agenda was The Citizen, a mixed-use project from Visum Development. The Citizen was originally approved as a five-story, 80,000 square-foot, 80-unit middle-income “workforce housing” proposal back in February 2023, but has since struggled to obtain financing. Now almost three years later, the project team is seeking to make major revisions to the approved plans.
In this latest proposal, Visum seeks to construct a new four-story apartment building with an approximately 75,250 square-foot gross floor area. The proposal would house 59 lower-to-moderate income residential units, including three studio, 32 one-bedroom, 24 two-bedroom apartments. Other features planned include a community room, support spaces, bike storage, 2,307 square feet of ground-floor retail space, and a covered ground-floor parking area with 27 parking spaces.
Most of the planning board is new, and many of the board members don’t like the original design elements. When seeking re-approval for a project after the passage of a substantial period of time, this is one of the risks that a project team takes.
While the environmental review has been approved — the latest plan is actually less impactful than its predecessor — the design is still a matter of strenuous debate. With that, the only item on the to-do list for The Citizen this month was Design Review, in the hopes that the board and the project team come together on an aesthetic design they could all comfortably accept and work with.
HOLT Architects’ L. Bear Smith was present to speak about the revised project. As Smith explained, the West Buffalo entry has been pushed to the north side of the building, and made the retail space the primary focus of the corner space, as well as reconfigure the lobby, the stairwell and the elevator, better connecting with the ADA parking and access. The reconfiguration also allows for additional planters and a seating area.
As for the covered garage, the board had desired some kind of gentle screening, not necessarily a chain link fence but to that effect. The latest submission proposes angled vertical louvers, so not as utilitarian but adding a component of privacy to the parking area – it appears more open from some angles, and more closed from others.
Meanwhile, P. Christopher Dirr of Rockabill Development said the project will be focused on individuals making 30% to 80% of area median income, with 18 supportive housing units. Dirr did not specify as to the nature of the supportive housing units.
Board member Andy Rollman, long one of the project’s major critics, welcomed the changes, feeling that they had made substantial progress. However, he remains opposed to the building’s open garage, saying it wasn’t right for the neighborhood. had some concerns.
“At nighttime, all these residential units [are] looking into a garage that will have to be lit for security,” Rollman said. “You’re onto something with the louver, but there should be more wall to the base of the building.”
As Rollman continued his critique, it appeared that the issues with Vecino’s Asteri and Arthaus developments are hanging over every lower-income housing proposal at this point. .
“We’ve all seen affordable housing projects in the city with major issues with crime. What I’m not seeing in the plan is any kind of support services,” Rollman said. “So, what will be different about this building, that wouldn’t have some of the issues that we’re seeing in other affordable housing projects?”
Planning board chair Emily Petrina asked about the nature of the support services for the 18 designated units. Dirr said the development team had partnered with Catholic Charities, a nonprofit social service agency, to service veterans, survivors of domestic violence, and those recovering from substance abuse, with support services on-site.
The project will be back before the planning board for additional review and discussion next month.
The Hive (132 Cherry Street)
Visum is reviving a project that’s been stuck in development purgatory since approval. The planning board granted approval to “The Hive” in September 2022, with an extension for site plan approval in September 2024.
Fast forward to present day, and the project team is now proposing changes to the site plan due to updated flood maps. The Federal Emergency Management Agency (FEMA) adopted new maps in June that greatly expand the floodzones in the city of Ithaca. As a result, many developers will need to purchase or pay more for flood insurance.
Visum will need to change the location of both buildings in the Hive’s original plans, as well as change outdoor amenities, and changing the apartment count. Instead of 143 units, there will be 148, including 12 studios, 88 one-bedroom units, and 48 two-bedroom units.
The units will be changed from premium market-rate housing to mid-market “workforce” housing. In addition, about 4,500 square feet of retail space is in the works for the ground floor. The project is located in the Cherry Street District zoning and will require zoning variances.
Unlike The Citizen, The Hive’s site plan approval is not expired. The board’s September 2024 reapproval is good for two years. As a result, the planning board can force less aesthetic changes.
As compared to the original plan, the ground floor is taller given the flood plain, a rooftop amenity space was removed, and the top floor mezzanine-style units are replaced with standard units to meet state affordable housing requirements.
Visum Senior Development Manager Julia Buchel remained present for this project, joined by architect Craig Jensen of Rochester-based CJS Architects. Last month, the board had expressed concerns about the tree lawn, amenity spaces, and that the West End was bearing too much of the burden of Ithaca’s low-to-moderate housing needs.
Jensen walked the board through three potential options for the tree lawn and curbside parking, the ground-level retail elements, the interior courtyard and placement of the electrical transformer on the property. The covered parking here will use a perforated metal screen similar to projects CJS has designed in Buffalo.
Responding to a question from Chair Petrina, Rockabill’s Dirr noted that the Citizen is pursuing 9% Low Income Housing Tax Credits ( LIHTCs), while this project is pursuing 4% LIHTCs – it’s intended to be non-specialized lower to moderate income housing 30%-120% of area median income, with majority of units closer to 80% of area median income.
The board liked a curbside space for deliveries or more substantial shoulder parking for the sake of the retail – Sutcliffe expressed concern with the viability of three smaller retail spaces and wondered if they should be combined into one larger unit. She also asked to include dog relief areas if they planned to be dog-friendly housing. Rollman felt the materials were “rich” but stressed the need for well-landscaped public and private spaces beyond just lawns, and felt that the north building was lacking on amenity spaces when compared to its southern counterpart.
The board didn’t have any major issues with the submission. Apart from the usual retinue of paperwork, it seems like the project was on a path forward towards approval.
The Hive will be back before the planning board next month.
309 College Avenue

Local developers Nick Robertson and Charlie O’Connor propose to demolish the former Collegetown No. 2 fire station and construct a new 8-story 55,000 square-foot mixed-use apartment building, with 77 units/112 bedrooms and 1,500 square feet of retail space on the ground level.
The Ithaca Voice first reported on the plans for 309 College Avenue in December. From a zoning standpoint, the project has it fairly easy; it is located in the MU-2 zone and will not require any variances. It is, however, subject to Collegetown Design Guidelines, so the aesthetics of its contemporary design can and will be the subject of additional scrutiny from the planning board.
The plan for this month’s meeting was to receive an introductory presentation about the plans, and for the Planning and Development Board to agree to be the Lead Agency to conduct the environmental review.
Robertson and O’Connor went before the board in-person, joined virtually by Erin Primerano from QPK Design. The ground level would have the retail space on College Avenue, and a “coffee-loungey” zone, study rooms, gym and other amenity spaces tucked further back on the ground floor.
According to Robertson, the developers are well into talks with a retail tenant with “proven success” in Collegetown, that may need up to 2,000 square feet of space; as a result, the ground floor is in a state of flux.
As for the architecture, Primerano walked the board through the ground-level spaces and facade, noting revisions to the ground level and rooftop since the initial filing late last month. The intent was to pursue an “upscale, contemporary” aesthetic with the building and landscaping designs.
The board unanimously declared itself Lead Agency and jumped into their round robin of comments. Generally, comments were positive. Board member Peggy Tully found the design and lighting simple and elegant, though noted planters on College Avenue might be “courting disaster”.
Rollman liked the design overall, but stressed that the building entries should be at-grade.
The project, facing only mild critiques, appears to be off to a favorable start, and review of the proposal will continue in February.
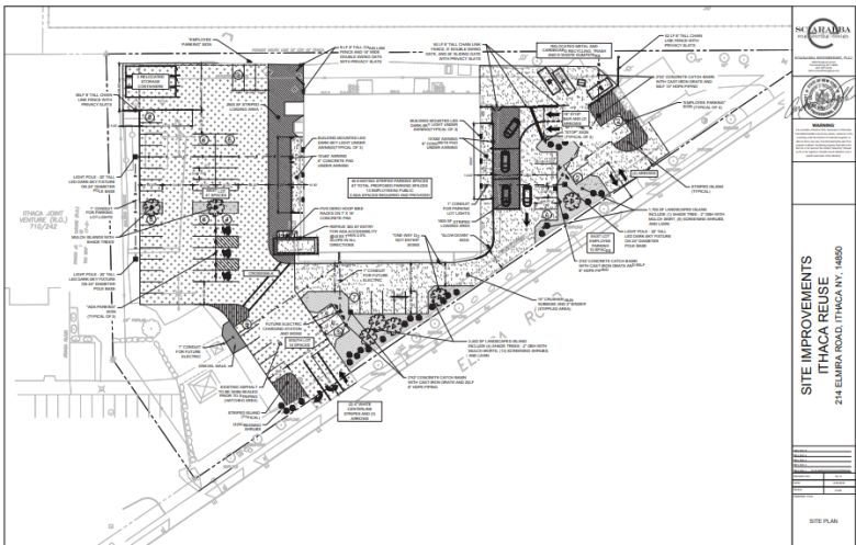
Finger Lakes ReUse Site Improvements (214 Elmira Road)

Finger Lakes ReUse proposes making site improvements and installing two 600 square-foot awnings to the east and west sides of the existing building at 214 Elmira Road. Previous, the location was the former BOCES vocational building, and before that a grocery store.
The project site improvements will disturb approximately 0.67 acres of the 2.37-acre site, and include removing paving, improving drainage, formalizing parking and loading areas, and adding green space. The owners propose adding 22 parking spaces to the site for a total of 67 proposed spaces. The $400,000 project is not expected to require any variances.
ReUse CEO Diane Cohen and local engineer Andy Sciarabba joined the board to talk about the plans. Cohen said that they were able to obtain a state grant with the help of Assemblymember Anna Kelles (D-125th District), which paid for roof repairs and much of the renovation plan before the board Tuesday night. The goal of the plan is to improve drainage, formalize parking and improve traffic circulation, materials donation drop-off, and the “lumber yard” for reclaimed wood.
The board lauded the utility of the proposal, but there were concerns. Rollman had discomfort with the lack of actual curbing separating the green spaces and paved areas. Board members also expressed some displeasure towards the fabric awnings.
Sciarabba said the structural awnings, like the additional curbing, were cost-prohibitive items. Tully was concerned about recycling trucks having to back up into the site to access the cardboard and scrap metal recycling containers, and thought the interior traffic circulation and electric vehicle parking area posed safety risks.
With those significant issues needing to be addressed with traffic circulation diagrams and potential revisions, the board unanimously declared itself Lead Agency, and the proposal will be back for the next round of review next month.
More stories like this