1920 Fairmount

The former Bethlehem Baptist Church building at 1920 Fairmount Ave. is planned for an office conversion. (Jonathan Spiers photos)

Two church buildings blocks apart from each other in Richmond’s East End are a step closer to being reborn as offices and apartments.

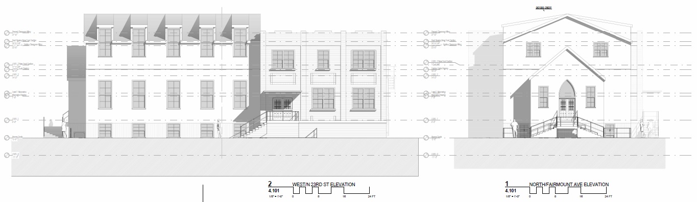
The Richmond Planning Commission on Tuesday supported a proposal to convert the New Mt. Calvary Holy Church building at 2301 Fairmount Ave. into 17 apartments, as well as a plan to turn the former Bethlehem Baptist Church building at 1920 Fairmount into four office spaces.

The apartment conversion would fit one- and two-bedroom units into the New Mt. Calvary building at the corner of Fairmount and 23rd Street. The two-story, nearly century-old building is across Fairmount from another recently converted church that’s now the headquarters for housing nonprofit Urban Hope.

2301 Fairmount

2301 Fairmount Ave., previously home to the New Mt. Calvary Holy Church, would house 17 apartments.

Local consulting firm Baker Development Resources is seeking a special-use permit for the project on behalf of Mt. Calvary Holy Church of America Inc., a North Carolina-based entity that owns the 0.15-acre property.

The church is working with local architect Todd Dykshorn of Architecture Design Office on the apartments, which would range from 400 to 1,000 square feet in size with six units in the basement, six on the ground level and five on the upper level.

Plans submitted to the city do not list a developer or contractor for the project. A call to Sherman Scott, a bishop with Mt. Calvary Holy Church of America who is listed on the plans, was not returned Tuesday afternoon.

NewMtCalvary elevation

An elevation rendering shows additional windows and other adjustments that would be made for the apartments at the New Mt. Calvary building. (City documents)

Three blocks west, the former Bethlehem Baptist building at Fairmount and 20th Street is planned for “office and social service delivery uses,” according to an SUP request from an LLC that purchased the 0.4-acre property last January for $1.7 million.

The LLC is tied to Church Hill North Holdings, the development firm led by local businessman Steve Markel whose projects have included The Pinnacle, the massive mixed-use development at the Fairmount-25th Street-Nine Mile Road roundabout that includes The Market at 25th grocery store and Kitchens at Reynolds culinary school.

Bethlehem Baptist site plan

A lower-level site plan shows two of the four office spaces planned for the Bethlehem Baptist building. (City documents)

The firm is working with 510 Architects and consultant Markham Planning on the Bethlehem church project, which would convert the 12,000-square-foot building into four office spaces ranging from 2,250 to 3,680 square feet, according to plans filed with the city.

The building dates to 1892, when it was built as Fairmount United Methodist Church, according to the filings. Bethlehem Baptist had owned it since 1962.

The filings list Church Hill North’s Toby Desch as a contact. Desch could not be reached Tuesday.

The projects are the latest proposals to convert former church buildings in the area. In addition to Urban Hope’s building, which was previously home to Tenth Street Baptist Church, the former Great Hope Baptist Church building at 2101 Venable St. had been planned for a 19-unit apartment conversion. The development group behind that plan have since listed the building for sale.

Print Article