Drivers who used Woodland Avenue to slip under I-35 just south of downtown Austin will never be able to cross the highway there again.
In one of the biggest pain points yet since the historic expansion of I-35 through Central Austin began, thousands of drivers have permanently lost access to an interstate crossing that has been in place for decades.

TxDOT’s map shows detours in effect with the closure of Woodland Avenue at I-35. The map indicates people on foot need to walk to Oltorf Avenue. But as of Wednesday morning, one sidewalk remained open at Woodland Avenue.
An even bigger headache will soon come for pedestrians and cyclists. One of two sidewalks under the highway remains open, but eventually, it will close.
The recommended pedestrian detour uphill to Oltorf Street and back down to Woodland is more than a mile long.
“I’m not happy about it. I’m not happy about a lot of things [related to I-35 construction],” said Emily Segel, who has lived nearby for five years and was walking her dog on Wednesday morning.
Within three years, pedestrians and cyclists will gain a dedicated 75-foot-wide bridge over the highway at Woodland. Vehicles on Woodland will have to detour to Oltorf Street or Riverside Drive.
The closure of the Woodward Avenue crossing has been a long-expected part of plans to widen the interstate through Travis County.
TxDOT said it chose the design to avoid having to tear down the Aria Grand Apartments, a 70-unit affordable housing complex at Woodland Avenue and I-35 that opened in 2019.
Nearby residents had fought for more than a decade in an attempt to keep the car crossing open.
Since the proposal surfaced in 2013, the South River City Citizens Neighborhood Association, which represents residents on both sides of the highway, warned shutting Woodland to cars would increase response times for police, firefighters and emergency medical services.

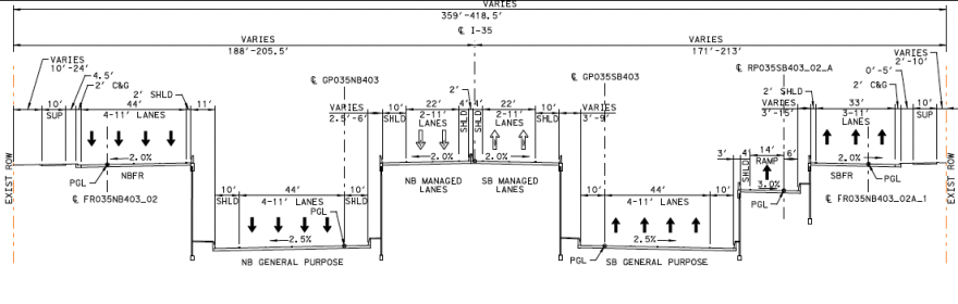
A cross-section of I-35 near Woodland Avenue shows the new configuration, with lowered general purpose lanes and the managed lanes running at about the same level as the frontage roads.
In a 2023 vote protesting the I-35 expansion, Austin’s City Council said the closure of Woodland Avenue “creates a division in the city of more than a mile between the Riverside Drive and Oltorf Street crossings.”
On Monday evening, TxDOT closed Woodland under I-35. The agency said it will construct temporary U-turn lanes at the underpass. Those U-turn lanes are expected to open in March. They won’t be accessible to drivers approaching the highway from Woodland.
Longer term, however, the U-turns will go away when TxDOT lowers the I-35 mainlanes.

An illustration of what the 75-foot wide pedestrian bridge over I-35 at Woodland Avenue could look like.
The Austin City Council considered, but rejected a plan to spend at least $15 million on a 300-foot-wide bridge at Woodland. Instead, TxDOT will pay to construct a 75-foot-wide pedestrian bridge.
The bridge for pedestrians and cyclists could open as soon as 2029.