Updated renderings have been shared for an eight-story infill project at 915 Bryant Street in SoMa, San Francisco. The project is looking to add over a dozen apartments above a small cafe to a narrow urban lot. Chandra Livingston of Manhattan Beach-based real estate agency, All Of Us Enterprises, is listed as the property owner and applicant.

915 Bryant Street isometric view, illustration by Ogle Design

915 Bryant Street isometric view, illustration by Ogle Design

Ogle Design is the design and interior architect for the project. Illustrations show an attractive infill project with a sculptural street-facing facade and inset balconies. The exterior will be wrapped with a mix of scalloped glazed white terracotta panels, metal panels, and painted cement plaster.

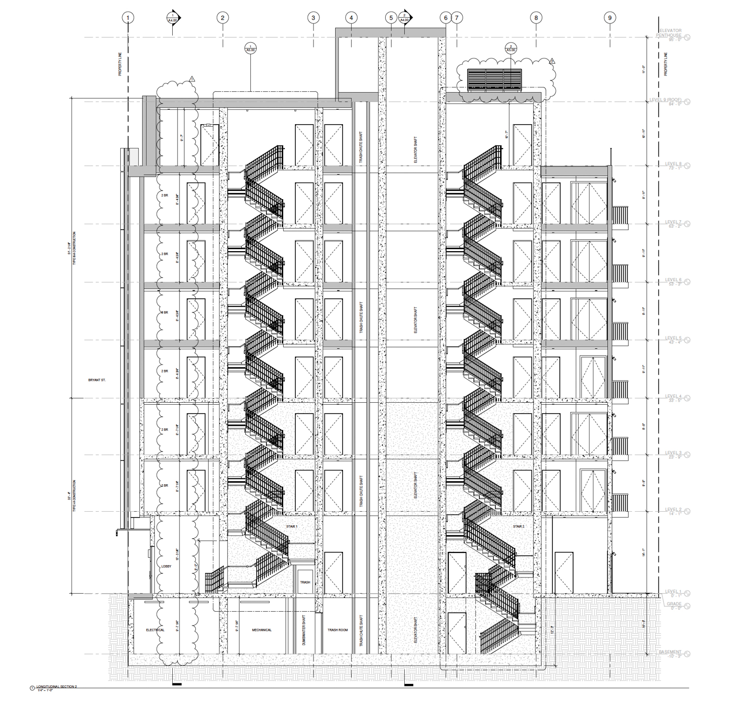
The 83-foot-tall structure is expected to yield around 17,600 square feet, including a small ground-level retail space and two stairwells. The development will produce 14 apartments, including three units of affordable housing. Apartment sizes will vary, with eight one-bedrooms and six two-bedrooms.

915 Bryant Street vertical cross-section, illustration by Ogle Design

915 Bryant Street vertical cross-section, illustration by Ogle Design

915 Bryant Street, rendering by Ogle Design

915 Bryant Street, rendering by Ogle Design

The application utilizes the State Density Bonus law to increase residential capacity by 100% above base zoning, and Senate Bill 330 to streamline the approval process. The 0.06-acre property is located along Bryant Street between 7th and 8th Street, close to the Interstate 80 overpass.

915 Bryant Street, image via Google Street View circa 2009

915 Bryant Street, image via Google Street View circa 2009

Construction is estimated to cost at least $5.4 million, a figure that does not include all development costs. The timeline for completion has yet to be shared.

Subscribe to YIMBY’s daily e-mail

Follow YIMBYgram for real-time photo updates
Like YIMBY on Facebook
Follow YIMBY’s Twitter for the latest in YIMBYnews

915 Bryant Street All Of Us Enterprises Chandra Livingston Ogle Design