The Chicago City Council has approved a mixed-use development at 2240 North Milwaukee Avenue in Logan Square. Revealed earlier this year, the project will replace a large parking lot at the intersection with West Prindiville Street, near the Congress Theater redevelopment. Efforts are being led by Kiferbaum Development Group.

Site context map of 2240 N Milwaukee Avenue via Google Maps

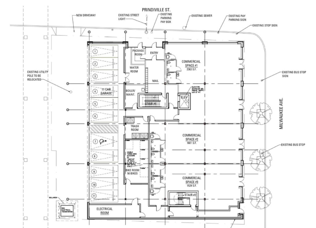
Site plan of 2240 N Milwaukee Ave by Jonathan Splitt Architects
Designed by local firm Jonathan Splitt Architects, the six-story development will rise 72 feet tall and be clad in a red-brick exterior with loft-style windows and cast stone accents. The ground floor will include 5,500 square feet of retail space along Milwaukee Avenue, pre-split into three spaces. This will be joined by a lobby along Prindiville Street.

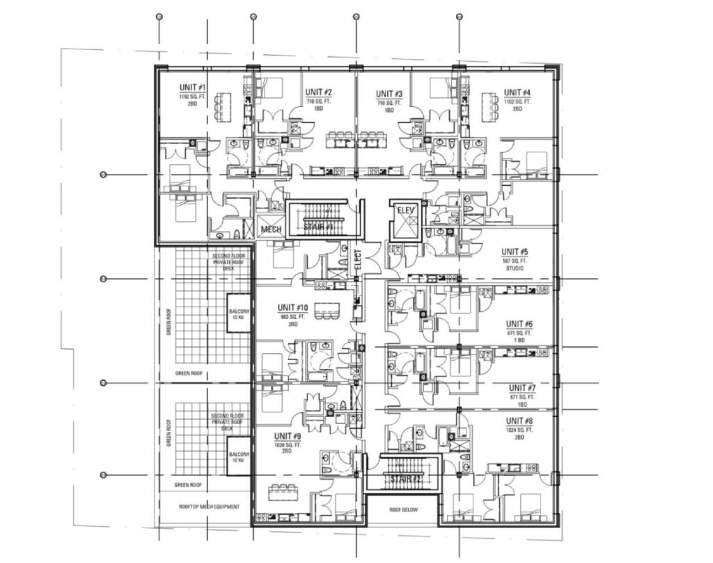
Floor plan of 2240 N Milwaukee Ave by Jonathan Splitt Architects

Floor plan of 2240 N Milwaukee Ave by Jonathan Splitt Architects
Tenants will also have access to 11 parking spaces along the rear alley within four garages. The upper floors will contain 50 residential units, consisting of five studios, 20 one-bedroom units, and 20 two-bedroom layouts, ranging from 587 to 1,192 square feet in size. Of these, 10 units will be designated as affordable. Select units along the rear will also feature private balconies.

Rendering of 2240 N Milwaukee Ave by Jonathan Splitt Architects

Rendering of 2240 N Milwaukee Ave by Jonathan Splitt Architects
Residents will have access to a 1,300-square-foot amenity space on the rooftop level, along with a large outdoor deck offering skyline views. Although a construction timeline has not been revealed, the team purchased the lot earlier this year for $1.5 million. With full zoning approval in hand, they can now apply for permits.
Subscribe to YIMBY’s daily e-mail
Follow YIMBYgram for real-time photo updates
Like YIMBY on Facebook
Follow YIMBY’s Twitter for the latest in YIMBYnews
2240 N Milwaukee Avenue Jonathan Splitt Architects Logan Square Mixed-Use Residential