Preliminary permits have been filed for a five-story apartment complex at 2 Crestline Drive within the Twin Peaks neighborhood of San Francisco. Initial plans call for replacing the oddly shaped corner lot with a nine-unit complex. James Keith is responsible for the application.

The 65-foot-tall structure is expected to yield around 17,200 square feet, including 10,300 square feet of housing. The ground floor will include a four-car garage and bicycle storage for 11 bicycles. Unit types include two one-bedrooms, six two-bedrooms, and one three-bedroom apartment.

2 Crestline Drive, rendering by RG Architecture

2 Crestline Drive, rendering by RG Architecture

RG Architecture is responsible for the design. Illustrations show the apartment complex wrapped in a light brick veneer with thin metal window frames and a board-formed concrete base. There will be a row of balconies overlooking Burnett Drive, and a shared rooftop deck offering residents enviable views across the city.

The recent plans propose dividing an existing lot in half, separating a vacant corner lot from a 1964-built ten-unit apartment building that would remain unchanged. The portion where construction might occur is currently occupied by two trees, shrubbery, and a neighborhood sign labelled “Vista Francisco.” Public records show the property last sold in 2019 for just under $3.5 million, and the current property owner is listed as a San Francisco-based resident.

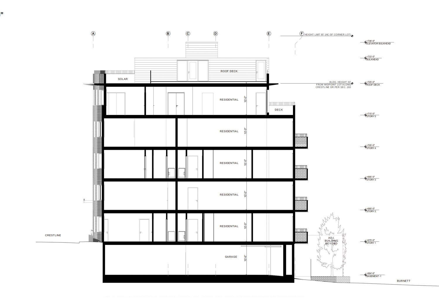
2 Crestline Drive vertical cross-section, illustration by RG Architecture

2 Crestline Drive vertical cross-section, illustration by RG Architecture

2 Crestline Drive site map, illustration by RG Architecture

2 Crestline Drive site map, illustration by RG Architecture

The tiny 0.07-acre property is located at the intersection of Burnett Avenue and Crestline Drive. Future residents will be less than 15 minutes away from the Castro, or twenty minutes away from the 24th Street BART Station by bus. The Diamond Heights grocery store is about twenty minutes away on foot.

2 Crestline Drive, image via Google Street View

2 Crestline Drive, image via Google Street View

The pre-application invokes Senate Bill 330 to streamline the approval process. The estimated cost and timeline for construction have yet to be established.

Subscribe to YIMBY’s daily e-mail

Follow YIMBYgram for real-time photo updates
Like YIMBY on Facebook
Follow YIMBY’s Twitter for the latest in YIMBYnews

2 Crestline Drive Feature James Keith RG Architecture