The Berkeley Zoning Adjustments Board is scheduled to review plans tomorrow evening about a mixed-use proposal for 2276 Shattuck Avenue in Downtown Berkeley, Alameda County. The proposal looks to adaptively reuse the Morse Block with an additional 15 floors. Laksh Lakireddy of Vindium Real Estate is listed as the property owner, filing through Pasand Courtyard LLC.
The roughly 205-foot-tall structure is expected to yield around 138,840 square feet, including 132,150 square feet of housing and 4,850 square feet of ground-level retail. Unit sizes will vary for the 134 apartments, including 15 studios, 16 one-bedrooms, 31 two-bedrooms, and 72 three-bedrooms. Parking for 117 bicycles will be included.

2276 Shattuck Avenue pedestrian view of the adaptively reused Morse Block, rendering by Studio KDA

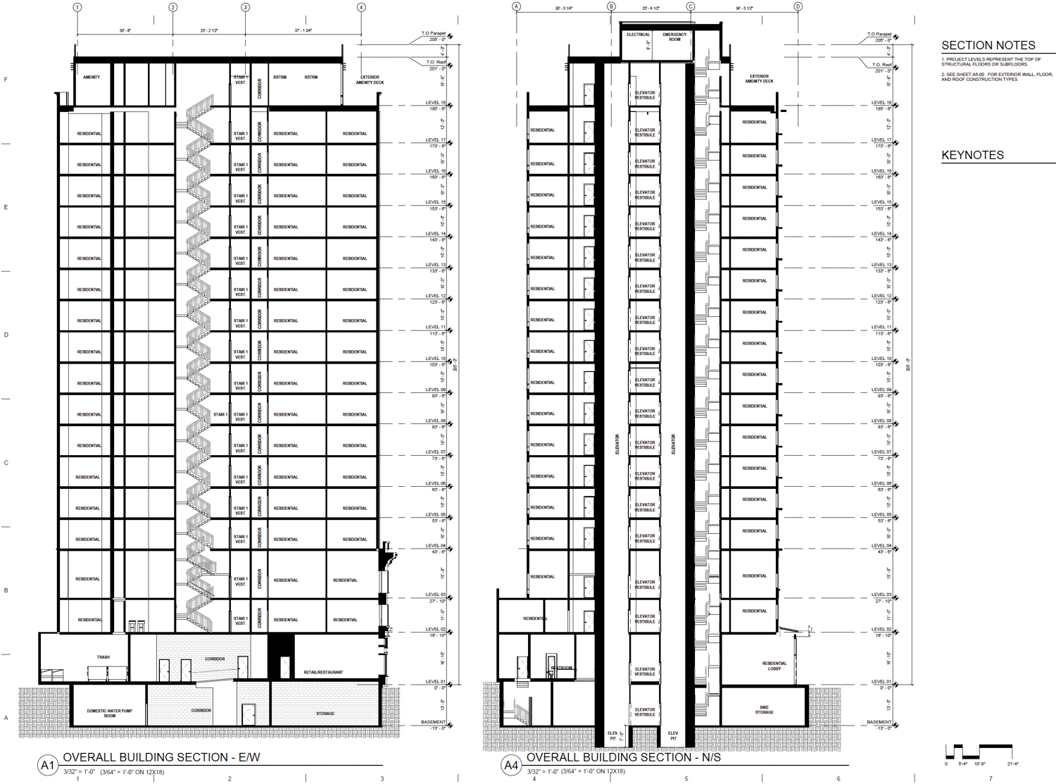
2276 Shattuck Avenue vertical cross-section, illustration by Studio KDA
Rhoades Planning Group is responsible for the application. The applicant utilizes the State Density Bonus Law to receive several zoning waivers and increase residential capacity. The plans for 2276 Shattuck Avenue will use waivers related to usable open space, landscaped area, height, structure width, and setbacks.
Studio KDA is responsible for the design, with Groundworks Office overseeing the landscape architecture. Updated illustrations show the firm has shifted away from the previously-shared darker grey facade. The newer design shows a boxy rectangular structure with a slight setback from the existing structure’s rooftop. According to Studio KDA, “The new tower is integrated into its existing building footprint and will be clad in toned concrete to complement but not mimic the original structure.”
The Morse Block building is a city landmark structure built in 1906 with the design by Dickey and Reed Architects. The firm is best recognized for the landmark Tudor Revival-style Claremont Hotel in the Berkeley Hills.

2276 Shattuck Avenue floor plans, illustration by Studio KDA

2276 Shattuck Avenue, image by Google Street View
The quarter-acre parcel is at the corner of Shattuck Avenue between Bancroft Way and Kittredge Street. Residents will be just one block from the UC Berkeley campus and two blocks from the Downtown Berkeley BART Station. Next to 2276 Shattuck, Panoramic Interests is pursuing approval for a 17-story residential tower at 2274 Shattuck Avenue.
The meeting is scheduled to start tomorrow, March 12th, starting at 7 PM. The hybrid event will take place online and at the Berkeley Unified School District Board Room, 1231 Addison Street. For more information about how to attend and participate, visit the city website here.
The estimated cost and timeline for construction have yet to be shared.
Subscribe to YIMBY’s daily e-mail
Follow YIMBYgram for real-time photo updates
Like YIMBY on Facebook
Follow YIMBY’s Twitter for the latest in YIMBYnews
2276 Shattuck Avenue Groundworks Office Rhoades Planning Group Studio KDA Vindium Real Estate