Elevation of 3007 W Irving Park Rd by Thomas Architects

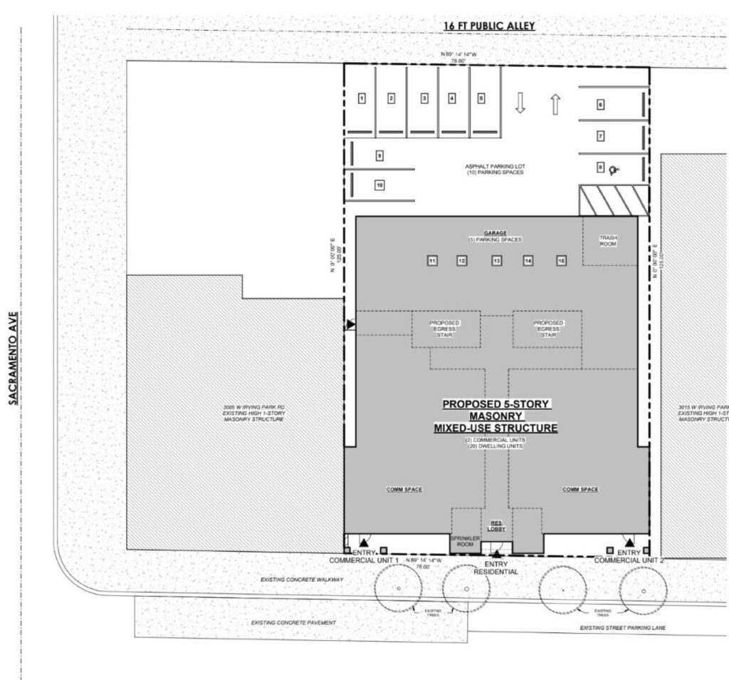
Plans have been revealed for a mixed-use development at 3007 West Irving Park Road in the Irving Park neighborhood. Located near the intersection with North Sacramento Avenue and just steps from Horner Park, the proposal would replace a pair of existing mixed-use buildings whose ground-floor retail space has been vacated.

Site plan of 3007 W Irving Park Rd by Thomas Architects

Local developer Lukaven Development is leading the effort, with Thomas Architects handling the design. The double-wide structure will rise five stories and reach a maximum height of 67 feet, including the rooftop penthouse. The overall boxy form is quite familiar, with three columns of inset balconies breaking up the street-facing massing.

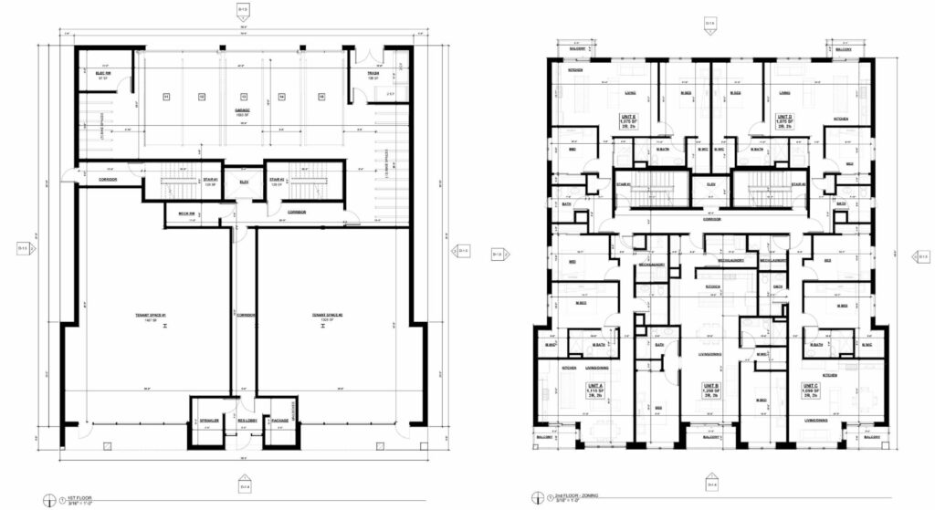
Floor plans of 3007 W Irving Park Rd by Thomas Architects

The building will hug the street, leaving room for a 15-vehicle parking lot in the rear accessed from the alley. The ground floor will be anchored by 2,800 square feet of retail space split into two storefronts. The remaining floors will contain 20 residential units made up entirely of two-bedroom layouts averaging around 1,100 square feet—a growing trend in neighborhood-scale projects.

Elevation of 3007 W Irving Park Rd by Thomas Architects

All units will have access to a small private balcony as well as a large rooftop deck and seating area. The building will be clad in a mix of brick and metal panels. The team must now gain approval from the local alderman before heading to the city for zoning approval. If all goes according to plan, construction could begin this spring and be completed by next April.

Subscribe to YIMBY’s daily e-mail

Follow YIMBYgram for real-time photo updates
Like YIMBY on Facebook
Follow YIMBY’s Twitter for the latest in YIMBYnews

3007 West Irving Park Road Irving Park Mixed-Use Residential

.