New details have been revealed for the mixed-use development known as Bridgeport Crossing at 3301 South Justine Street in McKinley Park. Located at the intersection with West 33rd Street, the multi-building development was first unveiled just over a year ago and will replace a large former industrial site steps away from Bubbly Creek.

Site context map of Bridgeport Crossing by Kennedy Mann

Rendering of Bridgeport Crossing by Kennedy Mann
Efforts for Bridgeport Crossing are being led by local realtor Sharon Wong, who recently submitted a zoning application for the project. Wong has been working with design firm Kennedy Mann since last year and has produced the new renderings. Plans still call for four buildings and a continuous green space along the east and west edges of the four-acre site.

Rendering of Bridgeport Crossing by Kennedy Mann

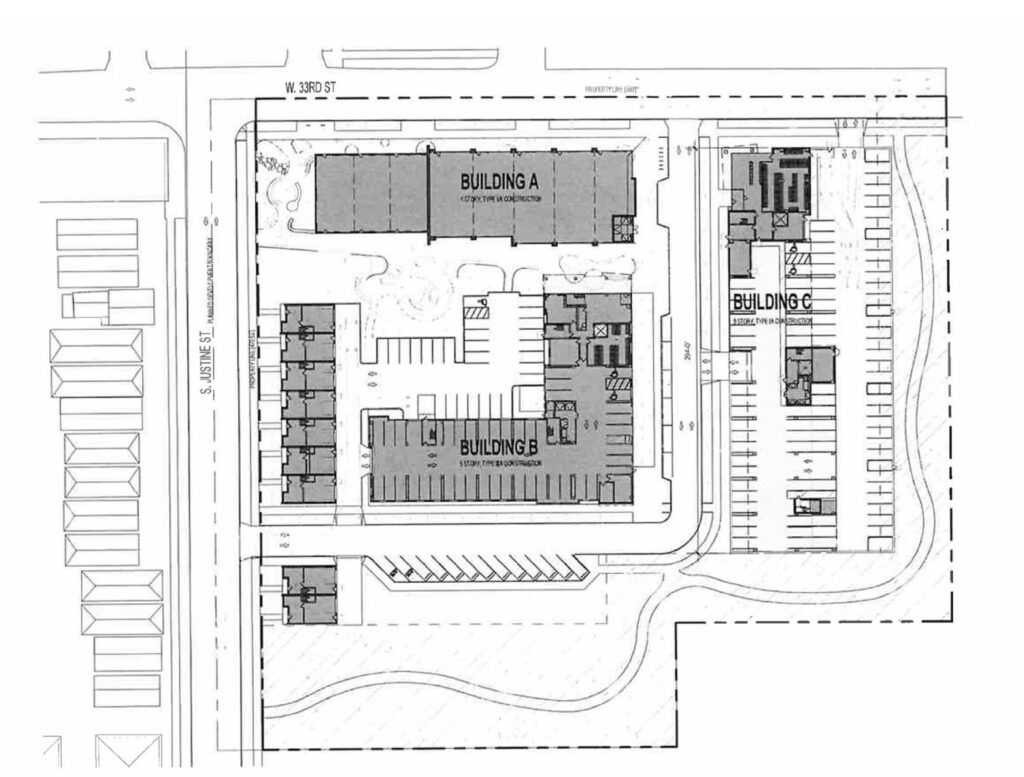
Site plan of Bridgeport Crossing by Kennedy Mann
Anchoring the northeastern corner at the main road intersection will be a new small plaza and public park, which will wrap around a one-story commercial building with over 14,000 square feet of space. Behind this will be Building B, a five-story, L-shaped residential structure with 72 for-sale condominiums and 73 parking spaces.

Rendering of Bridgeport Crossing by Kennedy Mann

Rendering of Bridgeport Crossing by Kennedy Mann
To the west will be a cluster of nine three-story townhomes, while the fourth and final building will rise along the eastern end of the site. Known as Building C, this structure will stand nine stories tall and include 99 parking spaces on the ground floor and 142 condominiums above. In total, the development will include 223 units, of which 42 will be designated as affordable.

Rendering of Bridgeport Crossing by Kennedy Mann
While the renderings are in black and white, the buildings appear to be clad in a mix of glass, masonry, and multi-toned panels. The team will now need to secure zoning approval from the city before moving forward. Previous press releases indicated a 2028 completion date, though this will most likely be pushed to 2029.
Subscribe to YIMBY’s daily e-mail
Follow YIMBYgram for real-time photo updates
Like YIMBY on Facebook
Follow YIMBY’s Twitter for the latest in YIMBYnews